2-к, Рабоче-крестьянская, 6 Показать на карте
Свердловский район, Островский
Пермь
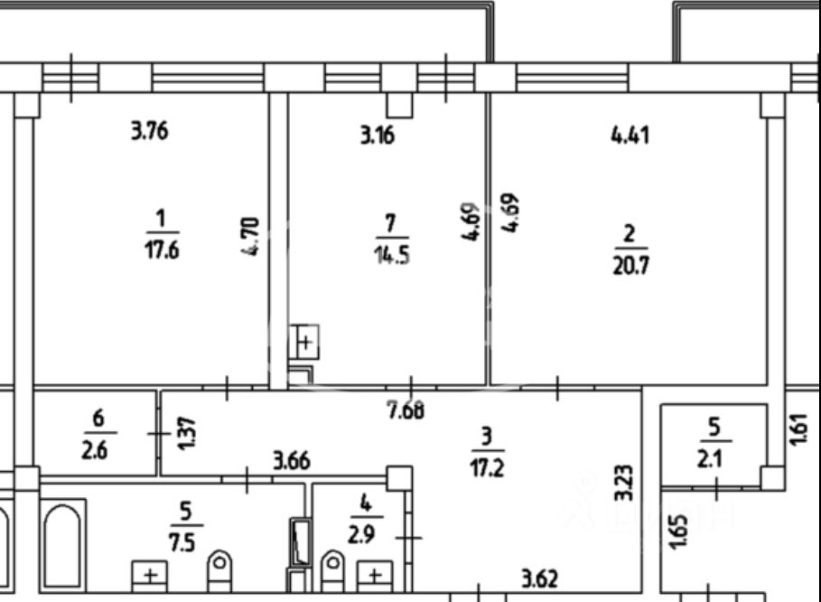
Двухкомнатная квартира в центре города на 9-м этаже 10-и этажки,площадь 50,8/30,6/9 кв.м. В квартире требуется ремонт, особенно вванной. Территория дома не огорожена. Квартира будет без мебели итехники. В малой комнате есть трещина от потолка до низу на последних фото.Без кондиционера (не рабочий, будет демонтироваться).Рядом с домом школа, сад. Есть перепланировка квартиры,необходима оформление в БТИ. Парковка небольшая перед домом.В шаговой доступности улицы: Сибирская, Революции, Островского.Квартира в залоге, в ипотеке, в аресте на время раздела, под обременением.Арест временный, можно снять в течение месяца через суд.Продажа не срочная, нужны деньги для второго собственника, адекватная цена, без торга.Условие, нужно дождаться решения суда по компенсации второму собственнику, только тогда продажа и съезд.В ипотеку продать не получится!!
50 м2
9 / 10 этаж
Кирпич
- Показать контакты
- Добавить в избранное
50 м2
9 / 10 этаж
Кирпич
5 100 000
100 394 /м2
