Дом, Нагорная, 45 Показать на карте
Прикамский
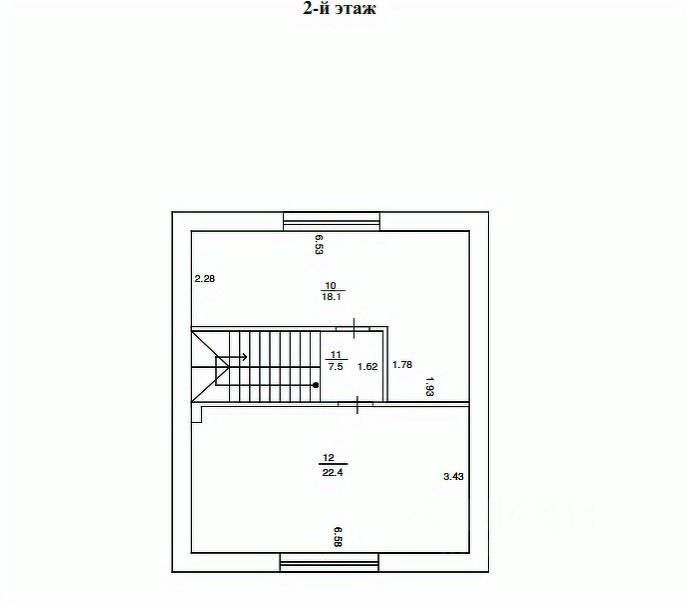
Прекрасный дом в п. Прикамский, рядом лес грибы и ягоды, а также спортивный комплекс ''Снежинка'', в поселке есть школа и детский садик, до остановки 10 минут пешком. На участке 18 сот земли растут яблони разных сортов, груши, жимолость, слива желтая и синяя, малина, крыжовник, смородина разных сортов, клубника и многое другое не говоря о разных сортах цветов. Огород ухожен, есть три большие теплицы с ними в подарок останутся вся техника и утварь для сада и огорода.Дом построен из трех рядов кирпичей, очень теплый! В доме газовое отопление, вода и канализация городская, платежи как за двух комнатную квартиру! В доме останется практически всё что на фото и даже больше!В доме две уютные спальни, зал, кухня и большая столовая , а также две комнаты отдыха и прекрасная баня, в доме два санузла с бассейном.Теплый гараж с выходом из дома.Дома заезжай и живи!
200 м2
2 этажа
- Показать контакты
- Добавить в избранное
200 м2
2 этажа
15 000 000
75 000 /м2
