Дом, Новоселы Показать на карте
Новоселы
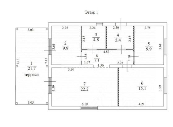
Современный дом в Новосёлах — заезжай и живи уже сегодня!Продаётся уютный одноэтажный дом 94 м² на участке 6 соток в живописной деревне Новосёлы, ул. Кедровая.Отличное расположение — всего 16 км от центра Перми, асфальтированный подъезд и вся инфраструктура рядом! Продажа от ИП Возможна покупка по Семейной и IT-ипотеке со ставкой от 6%. О домеОбщая площадь: 94 м², 1 этажПланировка: 3 спальни, просторная кухня-гостиная, прихожая, котельная, совмещённый санузелМатериал стен — газоблок, надёжный и тёплыйВсе коммуникации заведены в домОтопление — электрическое (тёплый и экономичный вариант)Водоснабжение — скважина, канализация — станция биологической очисткиКатегория земель — ИЖСГод постройки — 2025 Участок и инфраструктураУчасток 6 соток, ровный и ухоженныйРядом — магазины, аптека, автобусная остановкаАсфальтированная дорога до дома Дом полностью готов к комфортной жизни!Отличный вариант для семьи, которая хочет жить в своём доме с городским комфортом, но вдали от шума и суеты. Звоните — договоримся о просмотре!Покажем, расскажем и ответим на все вопросы. Код пользователя: 180913Номер в базе: 10315201
94 м2
1 этаж
- Показать контакты
- Добавить в избранное
94 м2
1 этаж
6 990 000
74 362 /м2
