Дом, Прохладная, 44 Показать на карте
Орджоникидзевский район, Головановский
Пермь
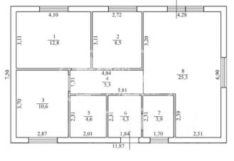
Представлен к продаже капитальный дом в перспективном микрорайоне Голованова. Здание построено из газобетонных блоков с внешней отделкой сайдингом и кровлей из профнастила. Комплекс включает в себя основной жилой объем и гараж, объединенные под одной крышей, что обеспечивает удобство в любую погоду. Придомовая территория благоустроена: площадка залита бетоном и выровнена, что гарантирует чистоту и аккуратный внешний вид. На участке имеется полноценная овощехранилище.Планировка первого этажа продумана для комфортной жизни: просторная прихожая, светлая гостиная с камином, изолированная спальня, кухня с выходом на террасу и большая совмещенная ванная комната. Терраса оборудована зоной для барбекю, а из панорамных окон кухни открывается вид на сад. С деревянной лестницы осуществляется доступ на второй этаж, где расположен холл, четыре изолированные комнаты и санузел. Данный этаж требует проведения финишных отделочных работ, что предоставляет новому владельцу возможность адаптировать пространство под собственные нужды — обустроить детские, кабинет или гостевые спальни. Объект обладает высоким потенциалом для создания современного жилого пространства для большой семьи. Микрорайон отличается развитой социальной и транспортной инфраструктурой. Код пользователя: 172281Номер в базе: 9818903
225 м2
2 этажа
- Показать контакты
- Добавить в избранное
225 м2
2 этажа
9 900 000
44 000 /м2
