1-к, Лукоянова, 31 Показать на карте
Свердловский район, Октябрьский
Пермь, Жилой дом «Июль»
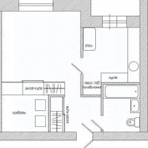
Продаётся уютная однокомнатная квартира в новом доме, расположенном на улице Лукоянова, 31, в Перми. Общая площадь квартиры составляет 30,6 квадратных метра, кухня — 10,6 квадратных метра. Квартира находится на шестом этаже шестиэтажного дома, что идеальный вариант для тех, кто не хочет жить высоко, но ценит вид из окна. Дом построен в 2021 году, выполнен из кирпича, что обеспечивает хорошую тепло- и звукоизоляцию. Высота потолков — 2,7 метра.В квартире выполнен косметический ремонт, поэтому можно сразу заехать и жить. Просторная кухня может стать идеальным местом для семейных ужинов и дружеских встреч. Санузел совмещённый, что удобно для небольших квартир. Есть балкон, где можно обустроить уютное место для отдыха. В доме работает пассажирский лифт, что удобно для подъёма с покупками или коляской.Дом находится в районе с развитой инфраструктурой. В шаговой доступности расположены школы, детские сады, магазины, поэтому можно легко решить все бытовые вопросы без необходимости пользоваться транспортом. Наземная парковка избавит от забот о поиске места для автомобиля.Продажа квартиры от собственника.Приглашаем вас на просмотр, чтобы почувствовать уют и удобство этой квартиры. Звоните, чтобы договориться о времени визита. Мы будем рады видеть вас!
30 м2
6 / 6 этаж
Бетонные блоки
- Показать контакты
- Добавить в избранное
30 м2
6 / 6 этаж
Бетонные блоки
5 100 000
166 667 /м2
