1-к, Пономарева, 75 Показать на карте
Мотовилихинский район, Садовый
Пермь
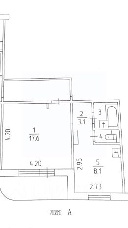
Уютная 1-к квартира 33 м² в монолитно-кирпичном доме на Садовом Продается светлая и уютная 1-комнатная квартира в одном из самых востребованных районов города — м/р Садовый. О доме:— Современный монолитно-кирпичный дом 2009 года постройки. — Чистый подъезд, хорошие соседи.— Комфортный 4 этаж из 9.О квартире:Общая площадь 33 кв. м. + просторная лоджия (дополнительное место для отдыха или хранения).— Кухня (10 кв. м.): Мечта любой хозяйки. Остается стильный кухонный гарнитур и встроенная техника.— Жилая комната (16,7 кв. м.): Правильной формы. Оставляем диван, шкаф и тумбу под телевизор — можно заезжать и жить.— Санузел: Совмещенный, полностью в кафельной плитке. Установлен водонагреватель (остается вам), что обеспечит комфорт в период летних отключений воды.Инфраструктура:Максимально удобное расположение. Всего 3 минуты пешком от двери вашей квартиры до остановки общественного транспорта. В шаговой доступности — всё необходимое: сетевые магазины, аптеки, уютные кафе,пункты выдачи и прочая необходимая инфраструктура.Звоните, отвечу на вопросы и организую показ в удобное время!
33 м2
4 / 9 этаж
Монолит
- Показать контакты
- Добавить в избранное
33 м2
4 / 9 этаж
Монолит
5 900 000
178 788 /м2
