2-к, Декабристов проспект, 21 Показать на карте
Индустриальный район, Ераничи
Пермь, Жилой комплекс «Мирный»
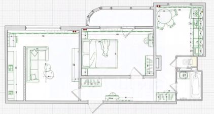
2 комн. квартира, центр Индустриального р на (пр. Декабристов). Уютная и тёплая! Развитая инфраструктура, удобная транспортная развязка. Рядом: парк им. Миндовского, ТРК Столица, бассейн Олимпия, магазины, школы, детсады. Чистый подъезд, консьерж, 3 лифта! Придомовая территория благоустроена, детская площадка, открытая свободная парковка. Cдeлaн совpеменный peмoнт. Продуманное комбинированное освещение. Уникальная перепланировка (согласована!): демонтирована стена между комнатой и коридором - в результате образовалась просторная зона и появилась дополнительная кладовка. Изолированная кухня. Просторный санузел с продуманной расстановкой сантехники. Низкие коммунальные платежи.7000 р - зима, 5000 р - лето. В подарок остаётся:• встроенная техника (посудомоечная машина, вытяжка, варочная панель, духовой шкаф),• мебель (большой вместительный шкаф купе, кухонный гарнитур).Один взрослый собственник, в браке. От второго супруга будет нотариальная доверенность на продажу. Долгов по комуналке нет. Обременений нет. Альтернативная продажа.В услугах риелтора не нуждаемся
46 м2
6 / 25 этаж
Бетонные блоки - монолит
- Показать контакты
- Добавить в избранное
46 м2
6 / 25 этаж
Бетонные блоки - монолит
7 920 000
169 231 /м2
