3-к, Комбайнеров, 43 Показать на карте
Индустриальный район, Балатово
Пермь, Жилой дом «Зенит»
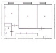
Продается просторная трехкомнатная квартира в Перми по адресу: улица Комбайнёров, 43. Общая площадь — 70,7 кв.м, жилая — 42 кв.м, кухня — 13 кв.м. Квартира расположена на 17 этаже 23-этажного дома, построенного в 2021 году. Вас порадует наличие лоджии, откуда открывается прекрасный вид на город. На полу ламинат, натяжные потолки, большая застекленная лоджия для отдыха и хранения.Дом современный: три лифта, огороженная территория с благоустройством. Центр Индустриального района — вся инфраструктура рядом: школы, сады, магазины, транспорт, бассейн Олимпия.В квартире сделан косметический ремонт, все готово для комфортного проживания. Просторная кухня позволит удобно расположиться всей семье. В квартире есть один отдельный санузел. Планировка продумана до мелочей, чтобы вы чувствовали себя максимально уютно.Дом современный, поддерживается в отличном состоянии. В подъезде установлены два пассажирских и один грузовой лифт, поэтому можно не беспокоиться о долгом ожидании. Есть возможность парковки рядом с домом.Рядом с домом находятся все необходимые объекты инфраструктуры: школы, детские сады и клиники. В шаговой доступности множество магазинов, поэтому покупки можно делать быстро и удобно. Хорошая транспортная доступность позволит легко добраться до любой точки города.Звоните, чтобы записаться на просмотр. Мы будем рады вас видеть!
70 м2
17 / 23 этаж
Кирпич - монолит
- Показать контакты
- Добавить в избранное
70 м2
17 / 23 этаж
Кирпич - монолит
9 400 000
132 956 /м2
