3-к, Кирова, 6 Показать на карте
Шлиссельбург
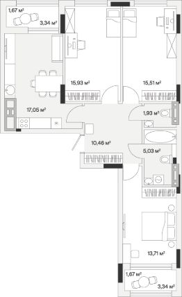
Представляем вашему вниманию исключительное предложение — трёхкомнатную квартиру с отличным ремонтом в тихом, уютном и историческом Шлиссельбурге. Это не просто квартира, а готовое пространство для комфортной жизни вашей семьи, так как квартира продается с мебелью и техникой. Общая площадь квартиры 63,4 кв.м. Площадь кухни 7,4 кв.м. Большая жилая площадь (37,4 кв.м.) гарантирует ощущение свободы и уюта. Безупречный ремонт выполнен с любовью и вниманием к деталям. Использованы качественные современные материалы, продумана каждая мелочь. Все коммуникации в идеальном состоянии. Это не просто квартира, а готовое пространство для комфортной жизни вашей семьи. Просторные изолированные комнаты правильной формы площадью 16,5+11,9+9 кв.м. позволяют с лёгкостью организовать личное пространство для всех домочадцев. Вам остаётся только заехать с личными вещами и начать наслаждаться жизнью. Огромная лоджия 7 кв.м.: Ваше дополнительное пространство для утреннего кофе, отдыха с книгой или организации уютного зимнего сада. Отличный вид и потрясающее естественное освещение. Надёжный кирпичный дом 1981 года постройки, характеризуется тёплыми стенами, хорошей звукоизоляцией и долговечностью. Идеальный 5 этаж в 5-этажном доме — это оптимальная высота, гарантирующая прекрасную инсоляцию (освещённость солнечным светом) и отсутствие шума с улицы. Идеальный вариант для тех, кто ценит надёжность, комфорт и не хочет тратить время и силы на ремонт. Отличное вложение в будущее! Прямая продажа. Ни кто не прописан. Более 5 лет в собственности. Два совершеннолетних собственника.
63 м2
5 / 5 этаж
Кирпич
- Показать контакты
- Добавить в избранное
63 м2
5 / 5 этаж
Кирпич
6 600 000
104 101 /м2
