1-к, Механошина, 16 Показать на карте
Свердловский район, Громовский
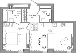
Просторная однокомнатная квартира. Кухня-гостиная 20,3 м² — светлое и открытое пространство для жизни и встреч,Спальня с собственной гардеробной — приватность и порядок без лишней мебели,Просторная ванная 5,4 м² — максимум удобства и комфорта, Ниша под шкаф-купе в прихожей — продуманное хранение с первых шагов,Большие окна в кухне-гостиной с низким подоконником (всего 40 см от пола) и панорамное окно в мастер-спальне наполняют квартиру светом и лёгкостью,Потолки 2,7 м — архитектурный объём и свобода в интерьере.
50 м2
24 / 30 этаж
Монолит
- Показать контакты
- Добавить в избранное
50 м2
24 / 30 этаж
Монолит
11 168 000
220 276 /м2
Новостройка,
IV-2027
IV-2027
