1-к, Гашкова, 45 Показать на карте
Мотовилихинский район, Вышка-2
Пермь
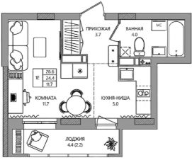
Арт. 135989825 В продаже комфортная квартира-студия с очень удобной планировкой. Общая площадь 28,6 кв.м. (комната 14,4 кв.м. и кухня-ниша 4,8 кв.м.)Квартира готова к заселению. Ключи в день сделки! Просторная прихожая 5,5 кв.м. со встроенным ШКАФОМ-КУПЕ, где поместятся все ваши вещи! В санузле (4,3 кв.м.) на полу и стенах ПЛИТКА, имеется электрический полотенцесушитель, вся сантехника в отличном состоянии.Кухня зонирована - имеется небольшой кухонный гарнитур, барная стойка со стульями. Светлая и просторная комната вмещает в себя всю необходимую мебель для проживания.В квартире также остается ХОЛОДИЛЬНИК и СТИРАЛЬНАЯ МАШИНА.Дом КИРПИЧНЫЙ, теплый, с большим количеством ПАРКОВОЧНЫХ МЕСТ, что сейчас большая редкость.Прямо за домом находится новая экотропа ''ДОЛИНА РЕКИ ЯЗОВАЯ'', специально облагороженная для жителей данного микрорайона с освещением, лестницами, мостиками и зонами отдыха отличное место для прогулок и отдыха на природе.В шаговой доступности магазины, школы, детские сады и гимназияРядом автобусная остановка.Это отличное предложение для тех, кто ценит удобство, чистый воздух и комфорт. Можно заехать и сразу жить или сдать в аренду. Звоните и записывайтесь на просмотр!
28 м2
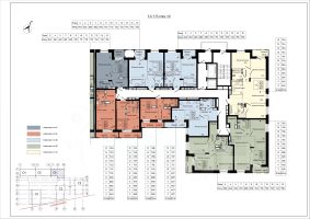
1 / 10 этаж
Кирпич
- Показать контакты
- Добавить в избранное
28 м2
1 / 10 этаж
Кирпич
2 750 000
96 154 /м2
