Дом, Протасы Показать на карте
Протасы
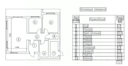
Продается уютный дом в п. Протасы, Тихие пруды Основные характеристики:- Площадь: 115 кв.м.- Участок: 8 соток- Количество комнат: 3- Этажность: 1- Год постройки: 2024 Описание:Предлагаем вашему вниманию светлый и просторный дом, расположенный в живописном месте п. Протасы, Тихие пруды. Этот уютный дом идеально подходит для семьи, которая ценит комфорт и природу. Особенности:- Просторная кухня.- Уютная гостиная с большими окнами, наполняющими пространство светом.- Комфортабельные комнаты, в которых приятно проводить время.- 2 санузла Участок:Участок большой и ровный, что дает вам возможность устроить ухоженный сад или огород, построить баньку, террасу или беседку. Локация:Дом находится в тихом и спокойном районе, что обеспечивает комфортное проживание. В шаговой доступности расположены магазины и места для прогулок. Что вокруг:- Прекрасные пруды для отдыха.- Близость к природе: леса, поля идеальные места для пикников и активного отдыха. Цена: 6 800 000 Контактная информация:Не упустите возможность стать владельцем этого замечательного дома! Для получения дополнительной информации и организации просмотра, звоните.Ждем вас на просмотр! Код пользователя: 168384Номер в базе: 6321189
115 м2
1 этаж
- Показать контакты
- Добавить в избранное
115 м2
1 этаж
7 800 000
67 826 /м2
