Дом, Ольховка (Заболотское с/п), 65/7 Показать на карте
Ольховка (Заболотское с/п)
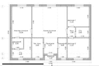
Представляю вашему вниманию участок 9 соток с домом, баней и теплицей. Участок освещается фонарными столбами с двух сторон, огораживается откатными воротами и оборудован скважиной 30 м.Просторный, двухэтажный блочный дом площадью в 173 кв. м. с газовым отоплением из морозостойкого, экологичного материала - полистиролбетона (без отделки) - отличная возможность для планирования интерьера и септика с нуля, на крыше дома находится деревянный чердак, все межэтажные перекрытия утеплены. Перед домом залито крыльцо, площадью в 20 кв. м. с целью сделать закрытую входную группу или открытую террасу, пришлю фото в качестве примера. В 10 метрах от дома расположена просторная баня из бревна, площадью в 24 кв. м. В предбаннике установлен кухонный гарнитур, стол и кожанный диван, печь находится в парной, а топочный канал проходит через стену в предбаннике, один септик под хоз. блоком для отлива из бани, второй септик за баней для отлива воды из стиральной машины. На входе в баню под крышей расположена зона отдыха площадью в 33 кв. м. Въезд на участок с двух сторон, дорога вдоль участка освещается фонарными столбами, откатные ворота позволяют заехать во входную группу нескольким машинам, на участке есть вишнёвый сад. Предоставляю помощь в оформлении документов, необходимых для получения ипотеки.
180 м2
2 этажа
- Показать контакты
- Добавить в избранное
180 м2
2 этажа
8 500 000
47 222 /м2
