3-к, Дягилева, 2 Показать на карте
Кондратово, Клубный пригород «МЫ
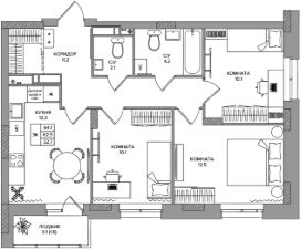
Арт. 132374393 Продается трехкомнатная квартира в Кондратово по адресу: Дягелева, 4. О КВАРТИРЕ: - Квартира с полной отделкой от застройщика, осталось только завезти свою мебель. - Теплый пол в коридоре, полотенцесушитель в с/у, приточный клапан для вентиляции на окнах, радиаторы с терморегуляцией. - Квартира очень светлая за счет увеличенного оконного проема. О ДОМЕ: - Кирпично-монолитный дом. - Дом оборудован улучшенной тепло- и звукоизоляцией и относится к классу Комфорт плюс. - Входные группы - сквозные. Дизайнерский холл, на 1 этаже колясочная, санузел и кладовые - На территории комплекса предусмотрено множество зеленых зон, а также современный двор-парк без машин, зонированые площадки для детей и зоны отдыха для взрослых. О РАЙОНЕ: - Пермский район- Жилой комплекс рядом с озером и построенный по принципу город в городе. Идеальное сочетание жизни за городом и развитой инфраструктурой (всего лишь в 20 минутах от цента города). - Для жителей ЖК организован бесплатный автобус до паркового. - В рамках комплексного развития территории планируется строительство: - 3 детских сада. - школы на 1240 мест. - парковки и зоны отдыха. - большой благоустроенной зоны набережной. - коммерческого кластера (продукты, пвз, одежда и обувь, развлечения и досуг, кафе и рестораны, здоровье, общественный кластер, образование) О СДЕЛКЕ: - Один собственник - Без обременений . Прямая продажа Любая формы оплаты - Все объекты в нашем агентстве проходят юридическую экспертизуСамолет Плюс - сервис квартирных решений от сделки до отделки! Субсидированная ставка от 11.90% Высококвалифицированные специалисты (юристы, маркетологи, ипотечный-брокер), помогут Вам на всех этапах! Помощь в оценке недвижимости и подборе новостроек по всей России Звоните прямо сейчас и запишитесь на просмотр!
54 м2
8 / 9 этаж
Монолит
- Показать контакты
- Добавить в избранное
54 м2
8 / 9 этаж
Монолит
7 500 000
138 889 /м2
Новостройка,
II-2026
II-2026
