3-к, Ижевская, 38 Показать на карте
Свердловский район
Пермь, Утро
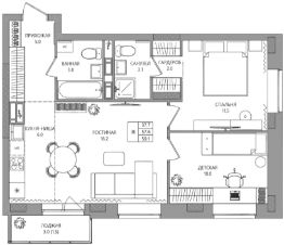
Продается 3- комнатная квартира 666в ЖК Утро. Скидки до 4% ! ЖК Утро расположен в Свердловском районе Перми на ул. Ижевская, 38. Дома находятся в непосредственной близости к центру города. Всего в 10 минутах от Комсомольской площади, а выехать на крупные транспортные артерии города ул. Героев Хасана и ул. Старцева можно за считанные минуты.''Утро'' еще только строится, а вокруг уже есть все, что нужно вам и вашей семье, чтобы жить с комфортом! Новая школа через дорогу, супермаркет в соседнем доме, заправка в 100 метрах не нужно ждать, пока вокруг появится инфраструктура.Все, что нужно, чтобы утро было добрым всегда! Чтобы жить комфортно и с удовольствием, в ЖК Утро есть:• Дизайнерские холлы,• Собственная газовая котельная,• Крытая парковка на придомовой территории,• Видеонаблюдение и консьерж 24/7,• Доступ в дом через приложение или по магнитному ключу,• Отдельное помещение для колясок и велосипедов,• Мульти-двор,• 10-и ступенчатая контурная изоляция и повышенная теплоизоляция.Квартиры в ЖК Утро сдаются с современной отделкой готовой для жизни. Не тратьте деньги и время на ремонт. Заезжайте сразу как получите ключи!Отделка включает в себя:• Металлическая сейф-дверь• Межкомнатные двери из экошпона• Виниловые обои• Ламинат• Радиаторы с терморегулятором• Плитка в санузле в мокрой зоне• Установлена вся сантехникаВ квартирах формата - студия установлен поддон. В квартирах других форматов установлена акриловая ванна.Не упустите возможность стать обладателем этой уникальной квартиры и начинать каждое утро с улыбкой на лице.Узнайте больше о ЖК Утро прямо сейчас, напишите нам в Сообщения или позвоните.Ваш персональный менеджер сделает всё необходимое, чтобы процесс приобретения квартиры и получения ключей стал лёгким и приятным.Успейте забронировать свою квартиру до повышения цен!Срок сдачи: 4 кв. 2026 г.
63 м2
20 / 25 этаж
Кирпич - монолит
- Показать контакты
- Добавить в избранное
63 м2
20 / 25 этаж
Кирпич - монолит
9 517 273
149 878 /м2
Новостройка,
IV-2026
IV-2026
