3-к, Луначарского, 99 Показать на карте
Ленинский район, Центр
Пермь, Жилой комплекс «Доминант»
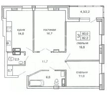
Продается просторная 3-комнатная квартира в престижном жилом комплексе ''Доминант'' в самом центре города.Квартира расположена на 10-м этаже и предлагает великолепный вид на стелобат.В квартире три изолированные просторные комнаты с качественным ремонтом: паркетная доска, керамогранит, теплый пол. Кухонный гарнитур остается новому владельцу.Жильцам предлагаются низкие коммунальные платежи благодаря эффективной работе ТСЖ. Кроме того, установлена система ''Умный дом'', обеспечивающая комфорт и безопасность. Один взрослый собственник, чистая продажа.Это отличное предложение для тех, кто ценит комфорт, качество и престижное местоположение. Сохраните, чтобы не потерять! Поможем с одобрением ипотеки!ID объекта в нашей базе: 1483
87 м2
10 / 25 этаж
Монолит
- Показать контакты
- Добавить в избранное
87 м2
10 / 25 этаж
Монолит
16 990 000
194 951 /м2
