2-к, Борцов Революции, 1а корп. 7 Показать на карте
Ленинский район, Верхняя Курья
Пермь, Экопарк Сосновый
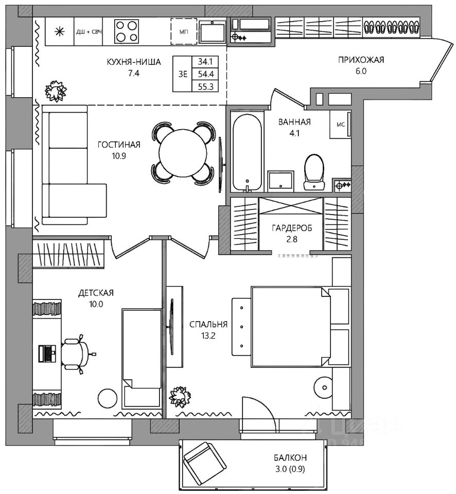
Продается отличная 2-комнатная квартира в жилом комплексе ''Экопарк Сосновый'' г. ПермиОсновные преимущества: Вы - первый владелец!! * экологически чистый район города, * подойдет тем, кто ценит загородный уют и не хочет быть вдали от трудового города, * свежий воздух, вековой сосновый бор с ароматом хвои и пением птиц - у Вас из окна, * новая вторичка в отделке White Box - вызов Вашим дизайнерским идеям, * уютные малоквартирные дома из керамического блока ''WanderBlok'' по технологии готовых стен толщиной 380мм и сроком службы более 100 лет, * продуманная планировка для ценителей просторных помещений - большие комнаты, функциональная огромная кухня, вместительная лоджия и коридор, * загородный вид из окна, * бульвар в ''сердце'' комплекса, * концепция ''двор без машин'', * инженерные сети, коммуникации, внутридворовое пространство, дорожки для прогулок, спортивная площадка, скамейки и декоративные элементы - ВСЕ НОВОЕ!!! * необходимая социальная инфраструктура: школы, сетевые продуктовые и строительные магазины, поликлиника, парикмахерская, детский сад) - рядом и продолжает развиваться, * транспортная доступность - на высоте, * до Камы всего 400 метров и 5 минут до городского пляжа, а в центр - за 20 минут, * собственная котельная на весь ЖК, * одна управляющая компания, * продумано всё для комфортной и безопасной жизни Вашей семьи! Довольно слов! Звоните и убедитесь сами! ID объекта в нашей базе: 796
75 м2
4 / 4 этаж
Кирпич
- Показать контакты
- Добавить в избранное
75 м2
4 / 4 этаж
Кирпич
9 521 009
126 778 /м2
Новостройка,
дом сдан
дом сдан
