2-к, Карпинского, 110а Показать на карте
Индустриальный район, Ераничи
Пермь, Триумф Квартал II
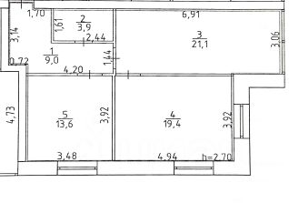
Предлагаем вашему вниманию просторную двухкомнатную квартиру площадью 58.7 кв. м, расположенную на 11 этаже нового современного дома 2025 года постройки. Идеальный вариант для тех, кто ищет жилье в современном жилом комплексе с развитой инфраструктурой. В квартире просторная кухня площадью 14.3 кв. м, где можно обустроить уютную зону для кулинарных экспериментов и семейных ужинов.Квартира без ремонта, что дает вам возможность создать интерьер по своему вкусу и реализовать все дизайнерские мечты. Две светлые комнаты, которые даже после строителей выглядят уютно и желание остаться здесь, позволят комфортно разместить семью или организовать рабочее пространство. В квартире есть один совмещенный и один отдельный санузел, что особенно удобно для утренней рутины. Лоджия с видом на тихий двор станет отличным местом для отдыха и уединения.Дом оборудован двумя пассажирскими и двумя грузовыми лифтами, поэтому вам будет удобно перемещаться даже с тяжелыми вещами. Наземная парковка избавит от поиска места для автомобиля. Для удобства жителей предусмотрен пандус.В шаговой доступности от дома находятся школы, детские сады и клиники, что делает эту квартиру идеальной для семей с детьми. Рядом расположены магазины, где можно купить все необходимые продукты и товары. Удобное транспортное сообщение позволит быстро добраться до любой точки города.Квартира продается без обременений, от собственника. Ипотека возможна, что делает покупку еще более доступной. Все документы готовы к сделке.Приглашаем вас на просмотр, чтобы лично оценить все преимущества этой квартиры. Записывайтесь на удобное для вас время и убедитесь, что это именно то, что вы ищете!Риэлторов прошу не беспокоить, риэлтор выбран.НА показы не приходить без покупателя. торг уместен.
58 м2
11 / 24 этаж
Кирпич - монолит
- Показать контакты
- Добавить в избранное
58 м2
11 / 24 этаж
Кирпич - монолит
6 200 000
105 622 /м2
Новостройка,
дом сдан
дом сдан
