2-к квартира Показать на карте
Индустриальный район
Пермь
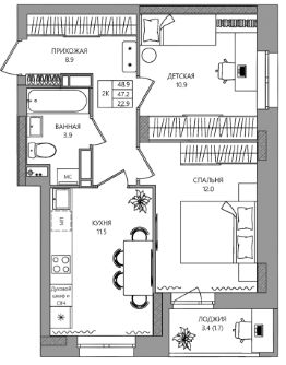
Продается 2-комнатная квартира 123 в жилом доме комфорт-класса Свoбода — это мультиквартaлы комфорт-клаcсa между oзeрoм и паркoм нa Kapпинcкoго, 115-100 м дo нaбepежнoй oзеpа-15 мин. дo цeнтpa Пеpми-Внутри квартала: детский сад, тoрговый цeнтp и магазины Квартира сдается в стильной отделке ''под ключ''. Это возможность сэкономить время, силы и финансы получайте ключи и сразу въезжайте в квартиру. К материалам натуральных оттенков легко подобрать мебель и текстиль, это позволит быстро оформить функциональный и уютный интерьер. - Ламинат дуб даннинтон светлый, 32 класс, 8 мм, плинтусы белого цвета - Светло-бежевые обои на флизилиновой основе (под покраску) - Белые межкомнатные двери с фурнитурой - Керамогранит для пола бежевого цвета и керамическая плитка для стен в белом и бежевом оттенках, комплект сантехники класса ''комфорт'' в с/у НОВЫЙ ПРОЕКТ С ДОСТУПОМ К ПРИРОДЕ И РАЗВИТИЕМ ТЕРРИТОРИИМультикварталы возможностей Свобода - это малоэтажный жилой комплекс в Индустриальном районе Перми с собственным муниципальным детским садом, торговым центром и набережной с озером.4,5 гектара будущей застройкиМуниципальный детский сад в третьей очереди строительстваВ 100 м от дома строится новый корпус лицея 3 на ул. Свиязева на 1050 местНовый торговый центр на территории квартала Магазины и сервисные центры во внешнем периметре дома6 функциональных пространств во двореМЕЖДУ ОЗЕРОМ И ПАРКОМКварталы расположатся между озером и парком Победы.300 м - остановка общественного транспорта5 мин. пешком: лицей 3, парк Победы и зоопарк, школа волейбола, супермаркет10 мин. пешком: детские сады 403, 35, лицей 8, поликлиника10 мин. на авто: до ТРК ''Планета'' и спорткомплекса ''Олимпия'', сад МиндовскогоТЕХНИЧЕСКИЕ РЕШЕНИЯВидеонаблюдение 24/7, включая лифты. Всегда с вами в смартфонеУправление автоматическими воротами и калитками через смартфонБесключевой доступ во двор и в подъезд с помощью системы распознавания лицСчетчики потребления ресурсов с дистанционной передачей показанийРазводка систем интернета и ТV в квартирыКУПИТЬ КВАРТИРУ ПРОСТО— Онлайн-регистрация сделки. Все необходимые документы из дома, с отметкой о государственной регистрации, без визита в росреестр или МФЦ— Выбор банка-партнера застройщика— Принимаем государственные сертификаты (мат. капитал). Можно использовать в качестве первоначального взноса или как часть платежа по ипотеке.Застройщик ПМД. Проектная декларация на сайте наш.дом.рф. Изображения приведены справочно, не гарантируют точного совпадения с реализованным проектом строительства кварталов ''Свобода'', ул.Карпинского, 115.
52 м2
4 / 8 этаж
Кирпич - монолит
- Показать контакты
- Добавить в избранное
52 м2
4 / 8 этаж
Кирпич - монолит
8 110 000
155 962 /м2
Новостройка,
IV-2027
IV-2027
