1-к, Механошина, 16 Показать на карте
Свердловский район, Громовский
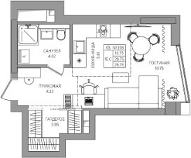
Простор и свет — каждый день.Кухня-гостиная 21 м² — идеальное место для жизни, отдыха и приёма гостей, Грамотная планировка с нишей под кухонный гарнитур — легко зонировать пространство и избежать визуального шума, Удобная гардеробная в прихожей — порядок без перегрузки пространства,Панорамные окна наполняют квартиру светом и делают вид частью интерьера,Окна выходят на две стороны — больше солнца, воздуха и приятных видов,Потолки 2,7 м — ощущение объёма и свободы.
44 м2
24 / 30 этаж
Монолит
- Показать контакты
- Добавить в избранное
44 м2
24 / 30 этаж
Монолит
11 002 000
245 580 /м2
Новостройка,
IV-2027
IV-2027
