Если цена в объявлении изменится, мы сразу сообщим вам об этом на электронную почту.
Нажимая «Подписаться», вы соглашаетесь с правилами.
продам 1-к, Улановой, 55 174 400 ₽
4 мар
Дата публикации объявления
Обн. 16 апр
Дата обновления объявления
1
Количество просмотров (+ просмотры за сегодня)
Спецпредложение
Турбо x8
154 000 ₽/м²
Чистая продажа
Термин "Чистая продажа" означает, что в квартире никто не прописан или
есть куда выписаться и вывезти вещи. Это лучший вариант для покупателя.
Вероятность срыва сделки минимальна.
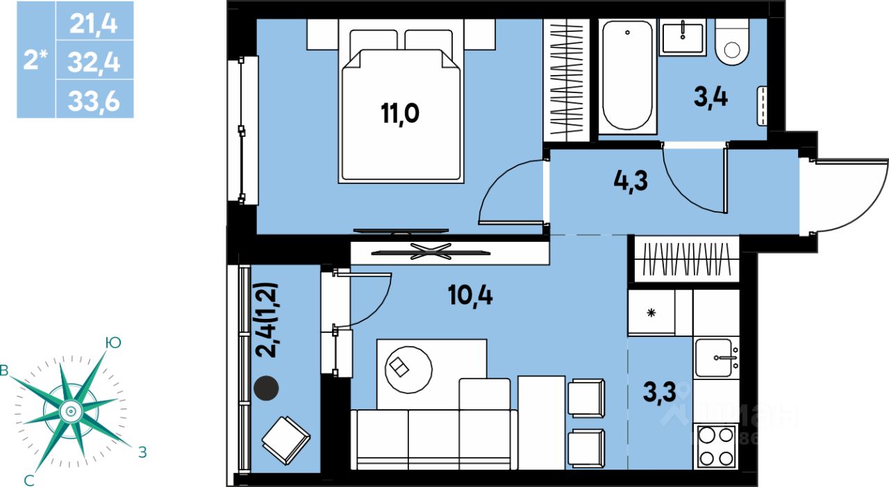
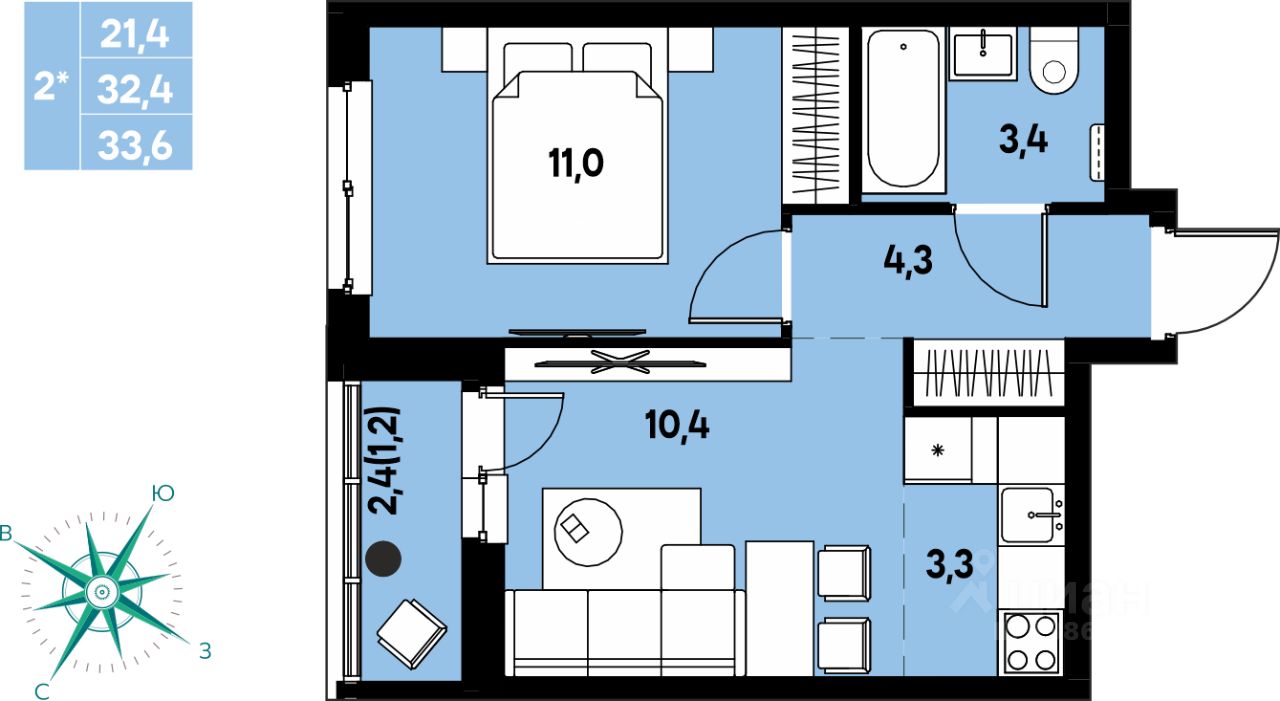
Продаётся студия в строящемся доме (Улановой, 5), срок сдачи: III-кв. 2027, общей площадью 33.6 кв.м., на 4 этаже. Новый жилой комплекс ''Клубный пригород ''МЫ'' от застройщика ''Девелопмент-ЮГ'' расположен по адресу д. Кондратово, пр-т Дягилева, 4.