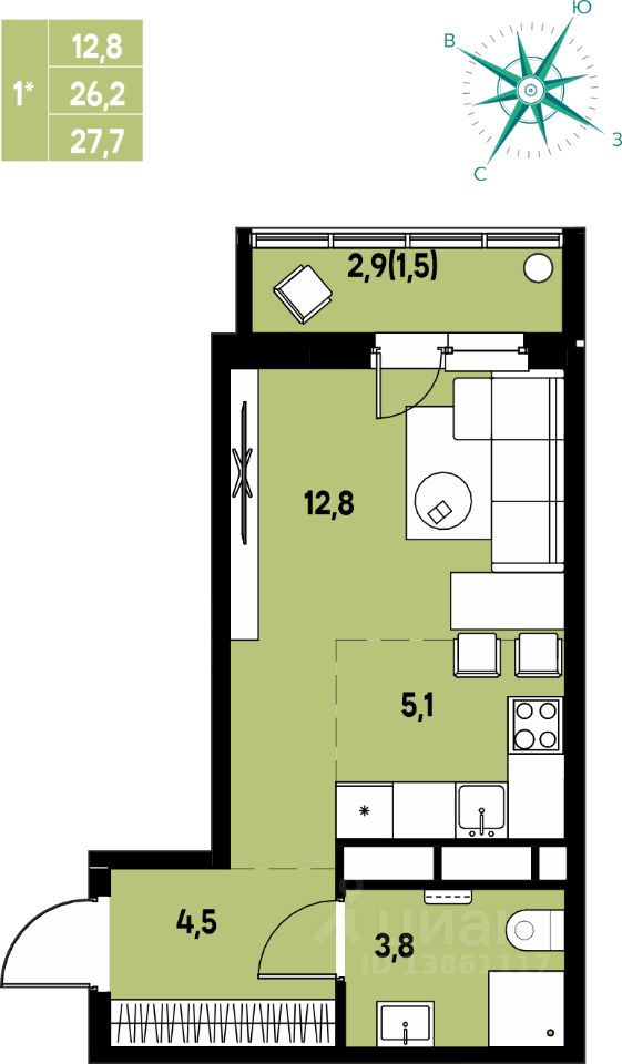
Продаётся студия в строящемся доме (Улановой, 5), срок сдачи: III-кв. 2027, общей площадью 27.7 кв.м., на 13 этаже. Новый жилой комплекс ''Клубный пригород ''МЫ'' от застройщика ''Девелопмент-ЮГ'' расположен по адресу д. Кондратово, пр-т Дягилева, 4.