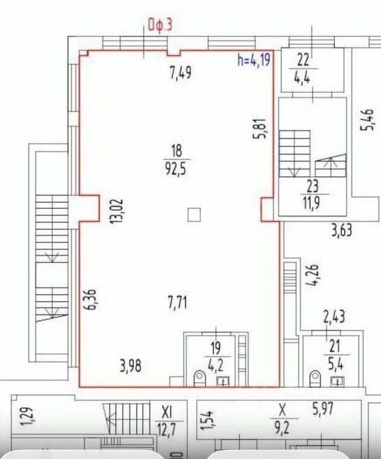
Сдаётся современен просторное торговое или офисное помещение на первом этаже
многоквартирного дома в новом развивающемся районе рядом с ПГУ. Высота потолков 4 метра позволяет разместить медицинский центр, лабораторию, аптеку, магазин, офис, а также объекты общественного питания благодаря мощной вытяжке и эл. мощности 45 кВт.
Помещение светлое, с отдельным входом и высоким пешеходным трафиком. Имеется возможность установки наружной рекламы с двух сторон здания.. Рядом обустроена парковка. Район перспективный, с активной застройкой и растущим числом жителей.
Для обсуждения арендных каникул и условий сотрудничества звоните сейчас
Код пользователя: 144213
Номер в базе: 11913761








