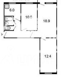
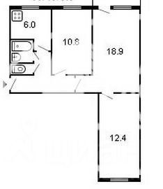
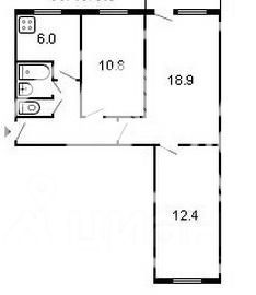
Продается просторная евро-трешка. 6 этаж. Зал и кухня совмещены, 2 раздельные спальни. Горячая вода централизованная, есть водонагреватель на случай отключения ГВС. Дом 2000-го года постройки, свое ТСЖ, отличное местоположение- вся инфраструктура рядом. Установлен новый лифт. Окна квартиры выходят на обе стороны дома. Санузел совмещен и выложен плиткой. Балкон- застеклен.Большая детская площадка у дома, ухоженная территория, чистый подъезд под видео-наблюдением, просторная парковка. Квартира полностью готова для новых собственников и не требует никаких вложений, вся встроенная мебель остается. Оказываем помощь в одобрении ипотеки без первоначального взноса. Полная юридическая проверка и сопровождение сделки на всех ее этапах.