сдам офисное помещение, Красновишерская, 37358 700 ₽ в месяц
24 фев
Дата публикации объявления
Обн. 26 мар
Дата обновления объявления
5
Количество просмотров (+ просмотры за сегодня)
850 ₽/м² в месяц
Параметры
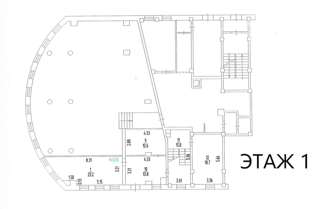
Общая площадь422 м2
Этаж1
Отдельный входесть
Помещение свободного назначения, площадь 422 кв.м., отдельный вход, 2 этажа, на 1 этаже высота стен 3.76 м, на 2 этаже 3.45 м. Офис расположен на охраняемой территории жилого комплекса с просторной парковкой.
Мотовилихинский район, ул. Красновишерская, 37, ЖК Паруса над Камой. Спокойный зеленый район, в 5 минутах ходьбы — удобная транспортная развязка и трамвайные пути.
Просторное, светлое помещение с множеством окон. Отдельная оборудованная кухня. Большой балкон, с которого открывается панорамный, захватывающий дух, вид на Каму. Идеально подходит для комфортной работы.
Все коммуникации центральные (водоснабжение, электричество и отопление).
Помещение свободного назначения, площадь 422 кв.м., отдельный вход, 2 этажа, на 1 этаже высота стен 3.76 м, на 2 этаже 3.45 м. Офис расположен на охраняемой территории жилого комплекса с просторной парковкой.
Мотовилихинский район, ул. Красновишерская, 37, ЖК Паруса над Камой. Спокойный зеленый район, в 5 минутах ходьбы — удобная транспортная развязка и трамвайные пути.
Просторное, светлое помещение с множеством окон. Отдельная оборудованная кухня. Большой балкон, с которого открывается панорамный, захватывающий дух, вид на Каму. Идеально подходит для комфортной работы.
Все коммуникации центральные (водоснабжение, электричество и отопление). 2 с/узла, система кондиционирования во всех кабинетах, общедомовая приточно-вытяжная вентиляция на кухне и в с/узлах, также в офисе есть пожарно-охранная сигнализация.
Помещение с ремонтом, возможна перепланировка и окрашивание стен в иной цвет. Готовы к обсуждению по вопросу передачи помещения, оборудованного офисной мебелью, которая есть на фото.