Если цена в объявлении изменится, мы сразу сообщим вам об этом на электронную почту.
Нажимая «Подписаться», вы соглашаетесь с правилами.
продам дом, Косотуриха5 290 000 ₽
24 фев
Дата публикации объявления
Обн. 15 апр
Дата обновления объявления
3
Количество просмотров (+ просмотры за сегодня)
57 688 ₽/м²
Чистая продажа
Термин "Чистая продажа" означает, что в квартире никто не прописан или
есть куда выписаться и вывезти вещи. Это лучший вариант для покупателя.
Вероятность срыва сделки минимальна.
Этажей1
Площадь участка6 соток
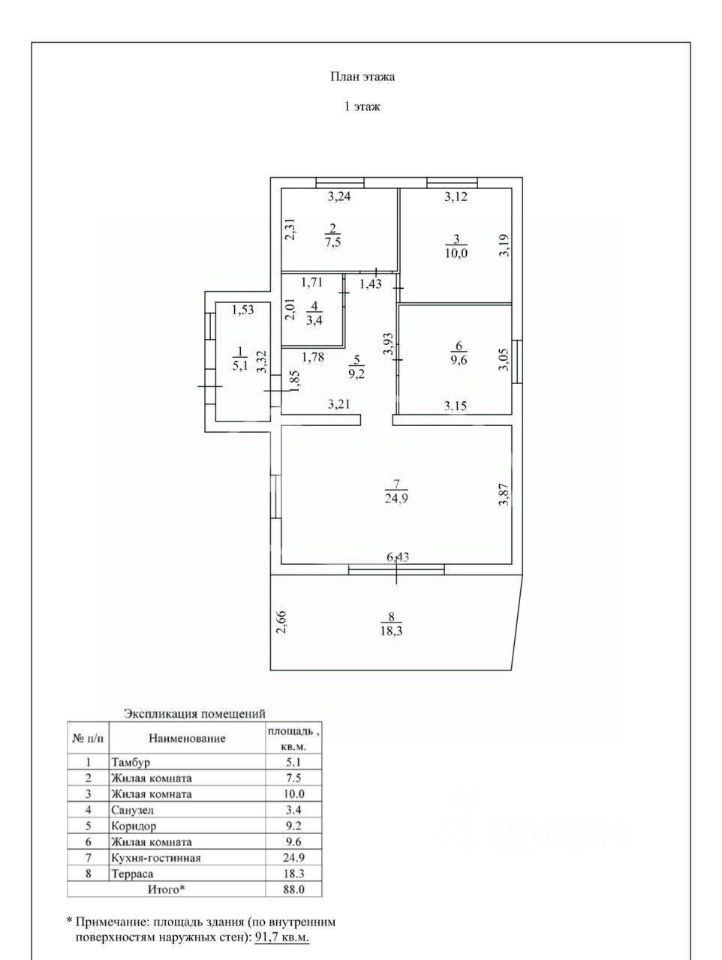
Общая площадь91,7 м2
В продаже готовый дом из газоблока в д. Косотуриха. Функциональная планировка - 4 комнаты, одна из которых просторная кухня-гостиная. Потолки 3м.
Ключевые характеристики дома: Фундамент: монолитная классическая плита Стены: газобетон автоклавного твердения, производитель ''Твинблок'' D400. Армирование блока арматура 8 мм каждый второй ряд. Материал кровли: металлочерепица. Производитель ЦМК.
В продаже готовый дом из газоблока в д. Косотуриха. Функциональная планировка - 4 комнаты, одна из которых просторная кухня-гостиная. Потолки 3м.
Ключевые характеристики дома: Фундамент: монолитная классическая плита Стены: газобетон автоклавного твердения, производитель ''Твинблок'' D400. Армирование блока арматура 8 мм каждый второй ряд. Материал кровли: металлочерепица. Производитель ЦМК. Окна: 5-ти камерный профиль Exprof Входная дверь: с терморазрывом
Внутренние работы: Межкомнатные перегородки Улучшенная штукатурка механического нанесения Полусухая стяжка Электроразводка Водяные теплые полы на электрическом котле Разводка труб канализации и водоснабжения Вентиляция Инженерные системы: Канализация - выгребная яма из ж/б колец Скважина , газ по границе участка.
Звоните и записывайтесь на просмотр. ДОМ подходит под СЕМЕЙНУЮ ипотеку, получено РАЗРЕШЕНИЕ о пригодности жилья к проживанию!