Если цена в объявлении изменится, мы сразу сообщим вам об этом на электронную почту.
Нажимая «Подписаться», вы соглашаетесь с правилами.
продам коттедж, Гляденовский квартал3 500 000 ₽
19 фев
Дата публикации объявления
Обн. 19 фев
Дата обновления объявления
1
Количество просмотров (+ просмотры за сегодня)
28 689 ₽/м²
Чистая продажа
Термин "Чистая продажа" означает, что в квартире никто не прописан или
есть куда выписаться и вывезти вещи. Это лучший вариант для покупателя.
Вероятность срыва сделки минимальна.
Этажей2
Площадь участка11,2 соток
Общая площадь122 м2
ЭлектричествоЕсть
Газоснабжениецентральное
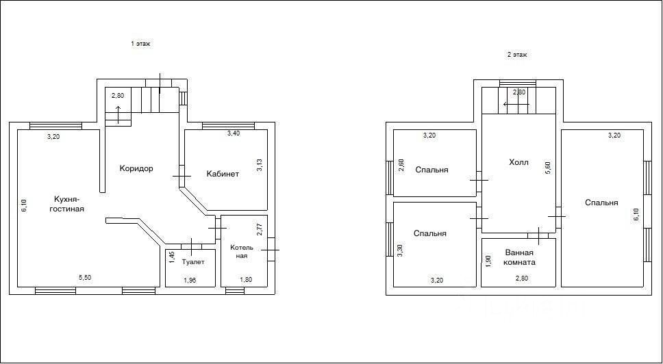
Продажа современного дома 122 м² из арболитового блока на участке 11.2 сотки.
Описание: Продается теплый и уютный дом для круглогодичного проживания. В доме 2 полноценных этажа (первый этаж не нуждается в перепланировке, продуман до мелочей). Отличный вариант для семьи, ценящей комфорт и экологичность.
Характеристики: * Общая площадь: 122 кв. м. * Участок: 11.2 сотки, ровный, правильной формы. * Материал стен: Арболитовый блок 400 мм (теплый, дышащий материал), оштукатурен с двух сторон. Перегородки — плиты перекрытия. * Кровля: Металлочерепица.
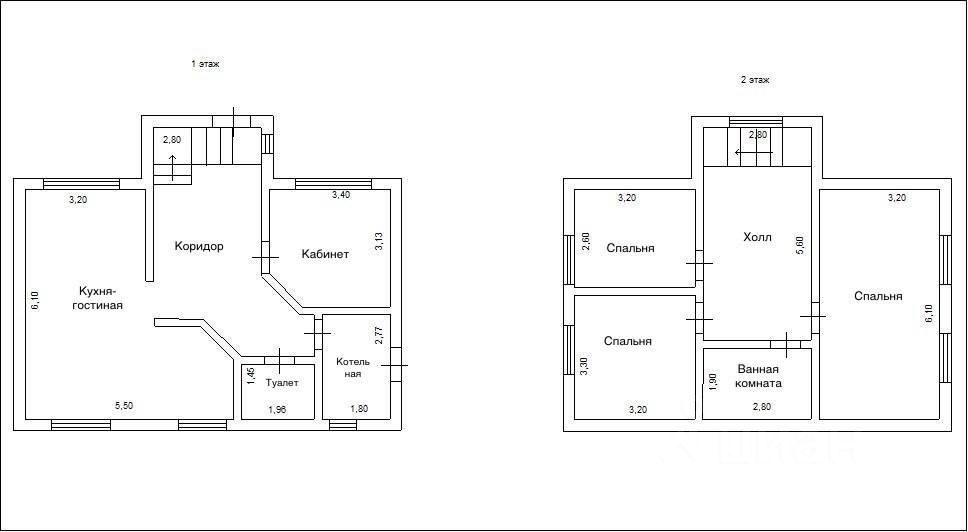
Продажа современного дома 122 м² из арболитового блока на участке 11.2 сотки.
Описание: Продается теплый и уютный дом для круглогодичного проживания. В доме 2 полноценных этажа (первый этаж не нуждается в перепланировке, продуман до мелочей). Отличный вариант для семьи, ценящей комфорт и экологичность.
Характеристики: * Общая площадь: 122 кв. м. * Участок: 11.2 сотки, ровный, правильной формы. * Материал стен: Арболитовый блок 400 мм (теплый, дышащий материал), оштукатурен с двух сторон. Перегородки — плиты перекрытия. * Кровля: Металлочерепица.
Планировка: * 1-й этаж: Просторная кухня-гостиная (идеально для приема гостей), отдельный кабинет (можно использовать как детскую или гостевую спальню), санузел, отдельная котельная. * 2-й этаж: 3 изолированные спальни, второй санузел, просторный холл.
Преимущества: * Надёжность: Толщина арболита 400мм обеспечивает отличное сохранение тепла зимой и прохлады летом. * Чистая продажа: Один взрослый собственник, все документы готовы. * Ипотека: Дом подходит под ипотеку на общих условиях (любой банк). * Участок: 11 соток позволяют разместить зону отдыха, баню, детскую площадку и огород. * До участка отличный подъезд.