Если цена в объявлении изменится, мы сразу сообщим вам об этом на электронную почту.
Нажимая «Подписаться», вы соглашаетесь с правилами.
продам 1-к, Кондратово7 196 700 ₽
17 фев
Дата публикации объявления
Обн. 18 мая
Дата обновления объявления
3
Количество просмотров (+ просмотры за сегодня)
Спецпредложение
Турбо x8
149 000 ₽/м²
Чистая продажа
Термин "Чистая продажа" означает, что в квартире никто не прописан или
есть куда выписаться и вывезти вещи. Это лучший вариант для покупателя.
Вероятность срыва сделки минимальна.
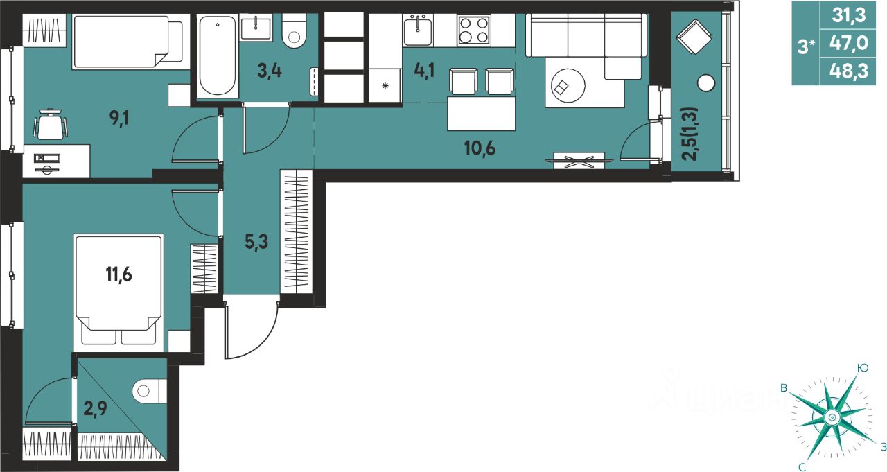
Квартира
Общая площадь48,3 м2
Жилая площадь31,3 м2
Кухня4,1 м2
Тип квартирыстудия
Тип собственностидоговор долевого участия
Дом
Срок сдачи3 кв. 2027 г.
Этаж2 из 16
Материал домамонолит
Продаётся студия в строящемся доме (Улановой, 3), срок сдачи: III-кв. 2027, общей площадью 48.3 кв.м., на 2 этаже. Новый жилой комплекс ''Клубный пригород ''МЫ'' от застройщика ''Девелопмент-ЮГ'' расположен по адресу д. Кондратово, пр-т Дягилева, 4.