Если цена в объявлении изменится, мы сразу сообщим вам об этом на электронную почту.
Нажимая «Подписаться», вы соглашаетесь с правилами.
продам коттедж, Култаево12 300 000 ₽
16 фев
Дата публикации объявления
Обн. 8 мая
Дата обновления объявления
16
(+1)
Количество просмотров (+ просмотры за сегодня)
143 023 ₽/м²
Чистая продажа
Термин "Чистая продажа" означает, что в квартире никто не прописан или
есть куда выписаться и вывезти вещи. Это лучший вариант для покупателя.
Вероятность срыва сделки минимальна.
Этажей1
Площадь участка8,3 соток
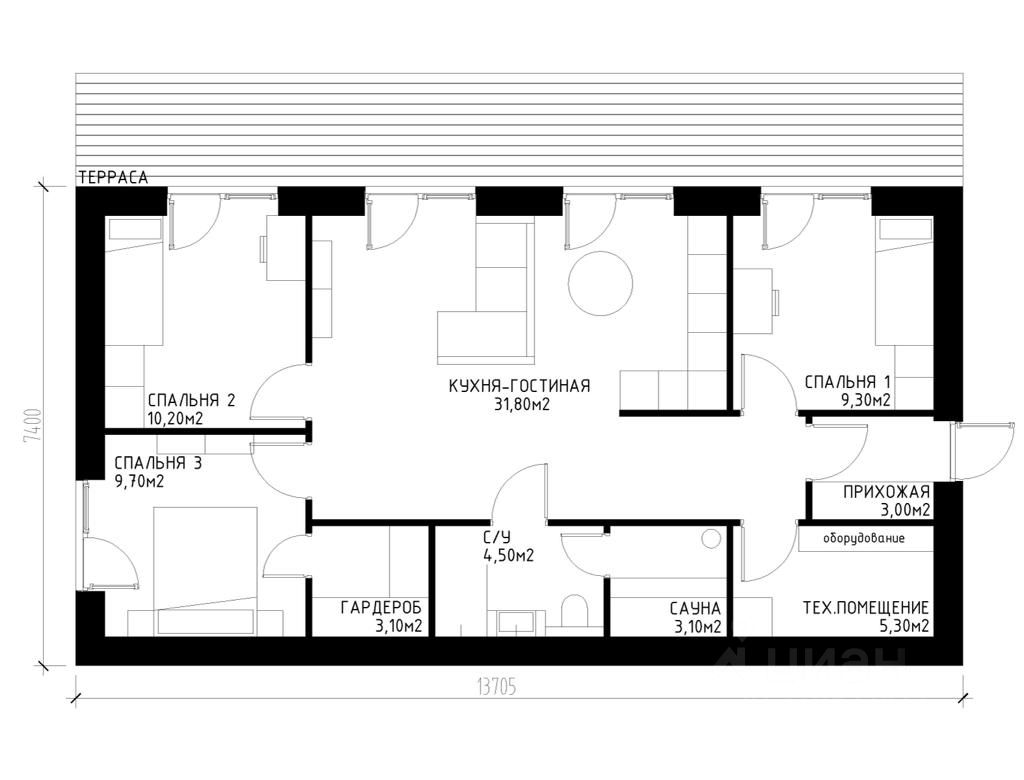
Общая площадь86 м2
ЭлектричествоЕсть
Газоснабжениецентральное
Прекрасный дом 2021 года постройки. Построен из бетонных блоков на железобетонной плите в качестве фундамента. Просторные комнаты и панорамное остекление придают дополнительный объем и простор. В доме три изолированные комнаты, и кухня-гостиная 31,6 кв.м, сауна, санузел и гардероб. Выполнен качественный ремонт с использованием дорогой сантехники и керамогранита. Коммуникации: электричество, скважина, канализация местная (2 колодца из железобетонных колец с переливом), отопление электрический котел и теплые водяные полы. Участок граничит с лесным массивом, дороги чистятся регулярно. На участке высажены плодово-ягодные деревья и кусты, ровный облагороженный участок, газон, теплица.
Прекрасный дом 2021 года постройки. Построен из бетонных блоков на железобетонной плите в качестве фундамента. Просторные комнаты и панорамное остекление придают дополнительный объем и простор. В доме три изолированные комнаты, и кухня-гостиная 31,6 кв.м, сауна, санузел и гардероб. Выполнен качественный ремонт с использованием дорогой сантехники и керамогранита. Коммуникации: электричество, скважина, канализация местная (2 колодца из железобетонных колец с переливом), отопление электрический котел и теплые водяные полы. Участок граничит с лесным массивом, дороги чистятся регулярно. На участке высажены плодово-ягодные деревья и кусты, ровный облагороженный участок, газон, теплица. Забетонированная площадка перед домом , автоматические ворота, вокруг дома отсыпано щебнем, веранда с монолитным бетонным полом . По улице газ. В пешей доступности остановка, магазины , салон красоты , фитнес клуб, новый детский сад. Квартира приобреталась с использованием кредитных средств ПАО ''Сбебранк'', остаток по ипотеке около 4 млн.рублей. Сертификаты в погашении ипотеки не использовались. Один взрослый собственник, на сделку готовы.