Если цена в объявлении изменится, мы сразу сообщим вам об этом на электронную почту.
Нажимая «Подписаться», вы соглашаетесь с правилами.
продам дом, Майора Николая Теплова9 550 000 ₽
10 фев
Дата публикации объявления
Обн. 16 апр
Дата обновления объявления
4
Количество просмотров (+ просмотры за сегодня)
93 627 ₽/м²
Чистая продажа
Термин "Чистая продажа" означает, что в квартире никто не прописан или
есть куда выписаться и вывезти вещи. Это лучший вариант для покупателя.
Вероятность срыва сделки минимальна.
Этажей1
Площадь участка5 соток
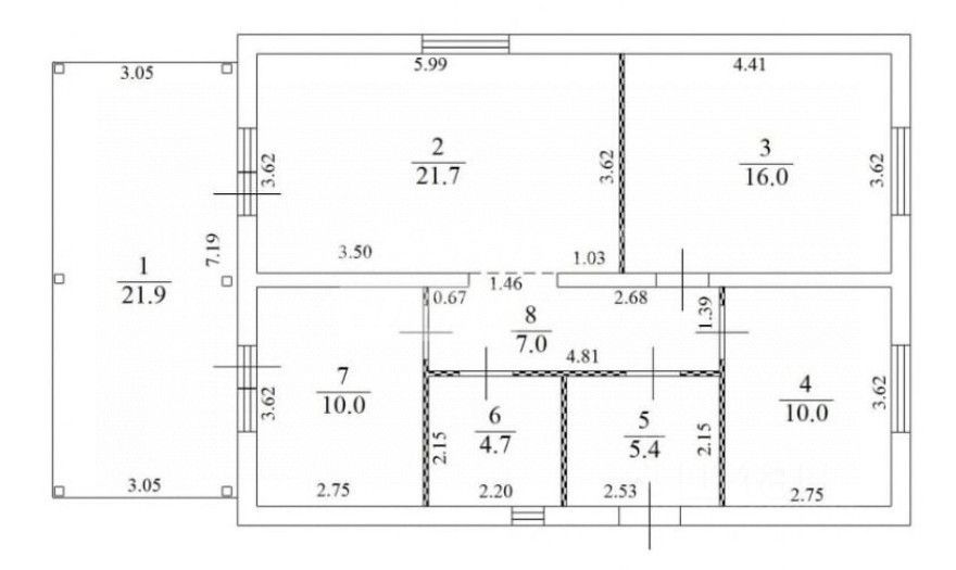
Общая площадь102 м2
ЭлектричествоЕсть
Газоснабжениецентральное
Арт. 129883025 Продажа от Юр.лица!!! !!!Ипотека 6%!!! Возможен обмен на Вашу квартиру!!!
Светлый, уютный дом в черте города!!! До Ул.Г.Хасана - 3 минуты по ровной, асфальтированной дороге. До остановки - 10 минут.
Общая площадь дома 102кв.м. из них: 75кв.м. сам дом + терраса.
Дом уже построен и готов к проживанию
Продажа дома возможна как с предчистовой отделкой, так и с полной отделкой под ключ.
•Фундамент-монолитная плита на 300 •Материал стен - газоблок на 300, ПТЖБ, Д-500. •Кровля - паро/гидроизоляция, утеплитель, металлочерепица. •Армировка каждые четыре ряда •ЖБ Армопояс.