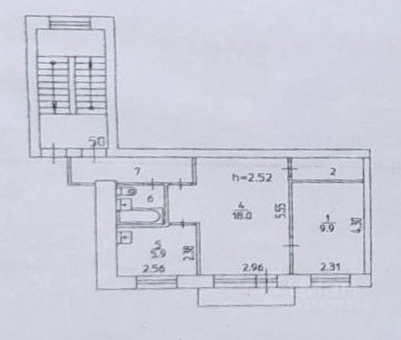
За объект уже внесли аванс Продаётся уютная и функциональная квартира — идеальный выбор для комфортной жизни! Общая информация: этаж: 3й, площадь: превышает среднестатистическую на 2 м², состояние: качественный ремонт, готова к заселению. Ключевые преимущества квартиры: Пространство и планировка: просторный коридор (1,25 м) со встроенным шкафом и проходным выключателем, большая комната, подготовленная для установки аудиосистемы (5,1 / 7,1 / 5,1,2), маленькая комната с панно из деревянных ламелей (осина), встроенной гардеробной и кладовкой, застеклённый балкон.
За объект уже внесли аванс Продаётся уютная и функциональная квартира — идеальный выбор для комфортной жизни! Общая информация: этаж: 3й, площадь: превышает среднестатистическую на 2 м², состояние: качественный ремонт, готова к заселению. Ключевые преимущества квартиры: Пространство и планировка: просторный коридор (1,25 м) со встроенным шкафом и проходным выключателем, большая комната, подготовленная для установки аудиосистемы (5,1 / 7,1 / 5,1,2), маленькая комната с панно из деревянных ламелей (осина), встроенной гардеробной и кладовкой, застеклённый балкон. Качество ремонта и коммуникации: полностью заменена электропроводка (медная), установлен электрощиток с новыми автоматами, выровнены стены в ванной, установлены полипропиленовые трубы, новые межкомнатные двери из массива хвойных пород, входная дверь — новая металлическая, проведены аудиоканалы для колонок, сделаны выводы под большой телевизор, проведён высокоскоростной интернет. Отделка и материалы: полы: деревянные с фанерным настилом, сверху — износостойкий линолеум (единый контур во всех комнатах), на кухне: фартук из керамогранита, встроенная кухня, хорошая мойка с двумя чашами, обновлённый хрущёвский холодильник, в маленькой комнате — обои под покраску, стеклопакеты с форточками (в маленькой комнате — форточка в раме). Дополнительные удобства: хороший вид из окна на двор, тихие соседи, управляющая компания Юком (надёжная и оперативная). Инфраструктура (всё в шаговой доступности): образовательные учреждения: школа, детские сады, спорт и отдых: бассейн, парк культуры, лес для лыжных прогулок, красные горки для катания на ватрушках, магазины: Магнит, Пятёрочка, Чижик, Стройдвор, транспортная доступность: остановка общественного транспорта неподалёку. Что остаётся в квартире: встроенный кухонный гарнитур, встроенная гардеробная в маленькой комнате, встроенный шкаф в коридоре, кладовка в маленькой комнате. Преимущества придомовой территории: обновлённая точка сбора отходов с регулярным вывозом, чистые дворы, новая детская площадка рядом с домом. Эта квартира — отличный вариант для тех, кто ценит комфорт, функциональность и развитую инфраструктуру. Звоните, чтобы договориться о просмотре!