Застройщик - Специализированный застройщик «УНО», ООО. Проектная декларация опубликована на сайте наш.дом.рф
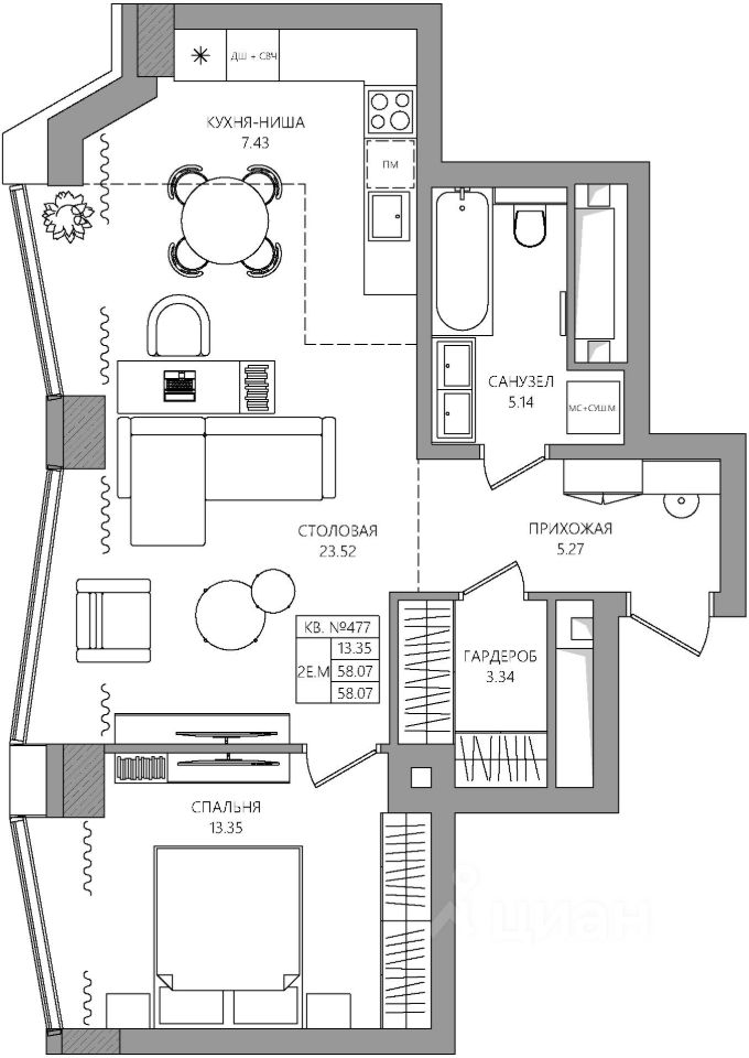
Продаётся 2-комнатная квартира в строящемся доме (К2), срок сдачи: I-кв. 2030, общей площадью 58.07 кв.м., на 22 этаже. Новый жилой комплекс ''МАНЕРЫ'' от Специализированного застройщика ''УНО'' расположен по адресу: г. Пермь, по ул. шоссе Космонавтов.