Термин "Чистая продажа" означает, что в квартире никто не прописан или
есть куда выписаться и вывезти вещи. Это лучший вариант для покупателя.
Вероятность срыва сделки минимальна.
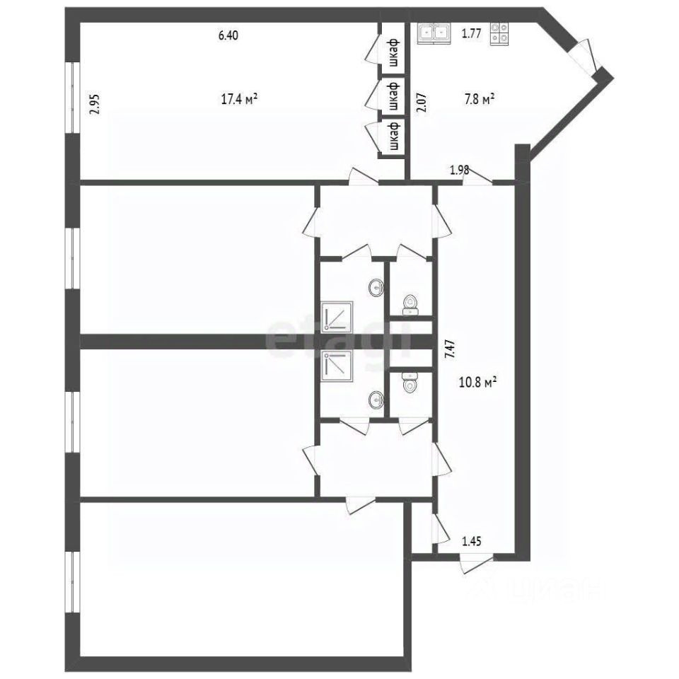
За объект уже внесли аванс Продается комната площадью 17,4 кв.м. в квартире на микрорайоне Владимирский. Объект представляет собой один из двух изолированных блоков в четырехкомнатной квартире, что обеспечивает высокий уровень приватности. В ваше исключительное пользование входит отдельная комната, а также санузел с раздельными туалетом и ванной. Общими пространствами являются кухня, коридор и балкон, что формирует сбалансированный формат проживания. В комнате остаются практичные элементы мебели — шкафы и диван, в общем коридоре — холодильник и встроенная система хранения, что позволяет заселиться с минимальными дополнительными вложениями.
За объект уже внесли аванс Продается комната площадью 17,4 кв.м. в квартире на микрорайоне Владимирский. Объект представляет собой один из двух изолированных блоков в четырехкомнатной квартире, что обеспечивает высокий уровень приватности. В ваше исключительное пользование входит отдельная комната, а также санузел с раздельными туалетом и ванной. Общими пространствами являются кухня, коридор и балкон, что формирует сбалансированный формат проживания. В комнате остаются практичные элементы мебели — шкафы и диван, в общем коридоре — холодильник и встроенная система хранения, что позволяет заселиться с минимальными дополнительными вложениями. Район отличается спокойной атмосферой, при этом вся необходимая инфраструктура — остановки общественного транспорта, детские сады, школы и поликлиника — находится в шаговой доступности. Дорога до центра города занимает около 20 минут. В настоящее время в комнате проживают квартиранты, которые готовы освободить помещение в кратчайшие сроки по договоренности с новым собственником. Это предложение оптимально для тех, кто ищет экономичный, но комфортный вариант с готовой инфраструктурой района и выгодной транспортной логистикой.