Если цена в объявлении изменится, мы сразу сообщим вам об этом на электронную почту.
Нажимая «Подписаться», вы соглашаетесь с правилами.
продам дом, Мира6 000 000 ₽
4 дек
Дата публикации объявления
Обн. 10 апр
Дата обновления объявления
6
Количество просмотров (+ просмотры за сегодня)
100 000 ₽/м²
Чистая продажа
Термин "Чистая продажа" означает, что в квартире никто не прописан или
есть куда выписаться и вывезти вещи. Это лучший вариант для покупателя.
Вероятность срыва сделки минимальна.
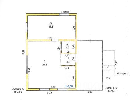
Этажей1
Площадь участка14 соток
Общая площадь60 м2
Представляем вашему вниманию отличный вариант приобретения собственного жилья в селе Сульмаш. Этот комфортабельный деревянный дом общей площадью 48.6 квадратных метров станет прекрасным выбором для семей, желающих переехать в тихий уголок природы либо обзавестись собственным уголком для отдыха на свежем воздухе. Дом выполнен из качественного бревна, покрытого современным сайдингом, что обеспечивает ему долговечность и эстетичный внешний вид. Внутри помещения обустроены рационально: кухня-студия, удобная комната-гостиная, отдельная спальня и оборудованный санузел. Особенность участка заключается в наличии собственной бани, которая прекрасно дополнит отдых на природе.
Представляем вашему вниманию отличный вариант приобретения собственного жилья в селе Сульмаш. Этот комфортабельный деревянный дом общей площадью 48.6 квадратных метров станет прекрасным выбором для семей, желающих переехать в тихий уголок природы либо обзавестись собственным уголком для отдыха на свежем воздухе. Дом выполнен из качественного бревна, покрытого современным сайдингом, что обеспечивает ему долговечность и эстетичный внешний вид. Внутри помещения обустроены рационально: кухня-студия, удобная комната-гостиная, отдельная спальня и оборудованный санузел. Особенность участка заключается в наличии собственной бани, которая прекрасно дополнит отдых на природе. Этот вариант подойдёт как семьям, желающим приобрести постоянное жильё в удалении от городского шума, так и любителям провести выходные дни на лоне природы. Село Сульмаш отличается развитой инфраструктурой, что делает проживание здесь комфортным и удобным. Не упустите шанс сделать выгодное приобретение и обеспечить себе место для полноценного отдыха и гармонии! Поможем с оформлением ипотеки.