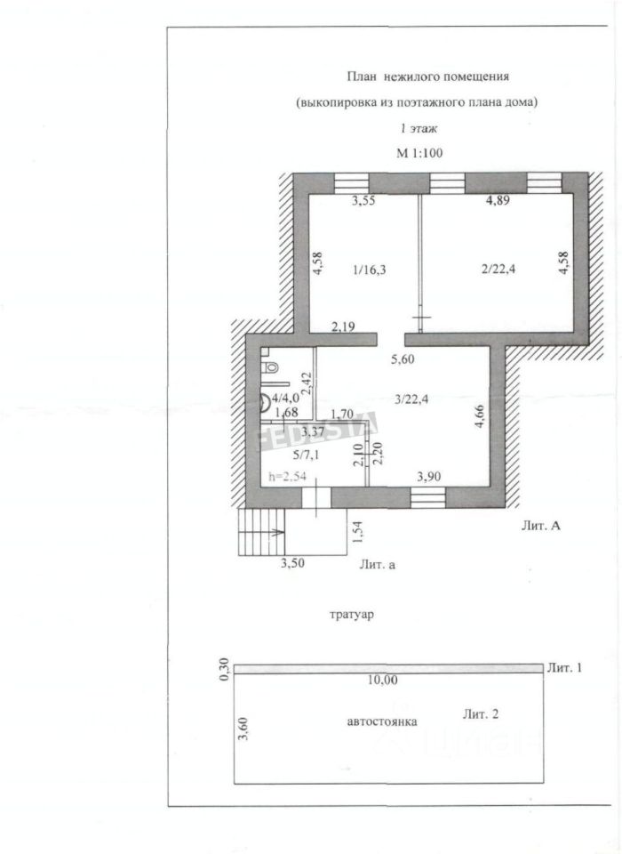
Продажа небольшой, уютный, функциональный офис в историческом центре.Первый этаж и первая линия.Отдельный вход со стороны советской.Небольшая парковка перед входом и большая в 50 метрах от дома.Три зала, два из них в тихий двор, просторная прихожая и туалет.Четыре окна. Стеклопакеты. Роль ставни.Пожарная и охранная сигнализация.Один собственник без долгов и обременений.Звоните договориться на осмотр.
Номер объекта: #1/553644/470















