Если цена в объявлении изменится, мы сразу сообщим вам об этом на электронную почту.
Нажимая «Подписаться», вы соглашаетесь с правилами.
продам дом, Лежгиха, 1а13 000 000 ₽
1 окт
Дата публикации объявления
Обн. 2 апр
Дата обновления объявления
10
Количество просмотров (+ просмотры за сегодня)
159 509 ₽/м²
Чистая продажа
Термин "Чистая продажа" означает, что в квартире никто не прописан или
есть куда выписаться и вывезти вещи. Это лучший вариант для покупателя.
Вероятность срыва сделки минимальна.
Этажей2
Площадь участка10 соток
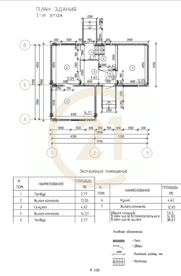
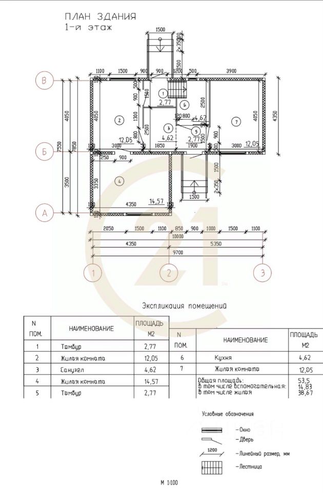
Общая площадь81,5 м2
ЭлектричествоЕсть
Газоснабжениецентральное
Код объекта: 1810382. Продаётся 2-этажный дом п. Полазна, в 40 км от Перми. Дом расположен на первой береговой линии пруда, на участке 10 соток, со своим пирсом и гостевым домом.
Дом из бруса, двухэтажный. Фундамент сплошной бетонный. на 1 этаже: кухня-гостиная, два зала, совмещенный санузел, спальня. на 2 этаже: две спальни.
В доме централизованные коммуникации (вода, канализация). Газовое отопление, теплые полы на первом этаже. Три входа в дом. Мангальная зона за домом.
На участке также построен бревенчатый двухэтажный гостевой дом-баня 80 кв.м. на 1 этаже: баня, кухня. на 2 этаже: бильярдная, комната отдыха. Газовое отопление, централизованная вода, канализация. Тёплый пол на 1 этаже.
Код объекта: 1810382. Продаётся 2-этажный дом п. Полазна, в 40 км от Перми. Дом расположен на первой береговой линии пруда, на участке 10 соток, со своим пирсом и гостевым домом.
Дом из бруса, двухэтажный. Фундамент сплошной бетонный. на 1 этаже: кухня-гостиная, два зала, совмещенный санузел, спальня. на 2 этаже: две спальни.
В доме централизованные коммуникации (вода, канализация). Газовое отопление, теплые полы на первом этаже. Три входа в дом. Мангальная зона за домом.
На участке также построен бревенчатый двухэтажный гостевой дом-баня 80 кв.м. на 1 этаже: баня, кухня. на 2 этаже: бильярдная, комната отдыха. Газовое отопление, централизованная вода, канализация. Тёплый пол на 1 этаже.
Заасфальтированная площадка перед домом. Имеются плодово-ягодные посадки. Территория дома полностью огорожена.