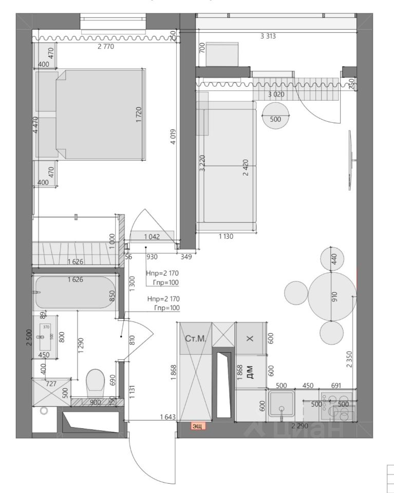
квартира с ремонтом и мебелью. Малоквартирный, малоэтажный умный дом.
ЖК Верн
Приятная огороженная территория, вход в подъезды с ул Пермская и с ул Клименко.
Свой уютный двор с площадками для детей и прогулочными аллеями на стилобате, качественная терраса на самом высоком этаже дома с оборудованной обеденной зоной и кухней .
Абсолютно новая квартира с выполненным с качественно дизайнерским проектом, современные формы и дорогие материалы.
Один из лучших видов в компоексе- на сквер им.Татищева. Вся инфраструктура рядом).
Комплектность квартиры практически полная и соответствует проекту. Вся мебель и бытовая техника ( кроме стиральной машины и телевизоров) находятся в квартире и входят в цену продажи.
Все просмотры по договоренности.




















