Если цена в объявлении изменится, мы сразу сообщим вам об этом на электронную почту.
Нажимая «Подписаться», вы соглашаетесь с правилами.
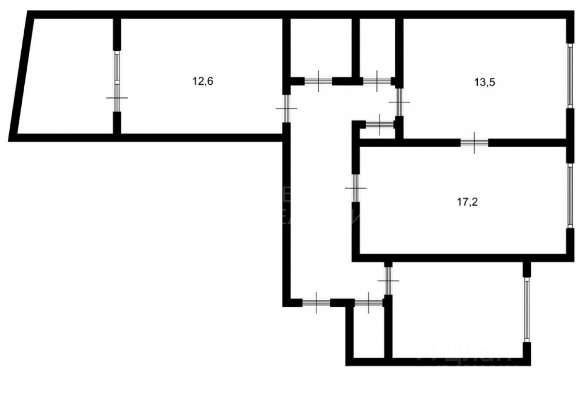
продам 3-к, Победы, 74 100 000 ₽
24 июля 2025
Дата публикации объявления
Обн. вчера
Дата обновления объявления
7
Количество просмотров (+ просмотры за сегодня)
60 561 ₽/м²
Чистая продажа
Термин "Чистая продажа" означает, что в квартире никто не прописан или
есть куда выписаться и вывезти вещи. Это лучший вариант для покупателя.
Вероятность срыва сделки минимальна.
Просторная трехкомнатная квартира в доме ленинградского проекта предлагает комфортное проживание в развитом районе с отличной инфраструктурой. Объект находится в хорошем состоянии: выполнен качественный ремонт, предусмотрена лоджия и кладовая (яма), санузел раздельный. В квартире остается кухонный гарнитур и вся необходимая мебель, что позволяет заселиться сразу после покупки. Расположение объекта является одним из ключевых преимуществ: в шаговой доступности находятся Дом культуры, сетевые магазины (''Пятерочка'', ''Магнит'', ''Чижик''), строительные гипермаркеты, две общеобразовательные школы, детские сады, музыкальная школа и библиотека. Транспортная доступность на высоком уровне: рядом остановка общественного и междугороднего транспорта.
Просторная трехкомнатная квартира в доме ленинградского проекта предлагает комфортное проживание в развитом районе с отличной инфраструктурой. Объект находится в хорошем состоянии: выполнен качественный ремонт, предусмотрена лоджия и кладовая (яма), санузел раздельный. В квартире остается кухонный гарнитур и вся необходимая мебель, что позволяет заселиться сразу после покупки. Расположение объекта является одним из ключевых преимуществ: в шаговой доступности находятся Дом культуры, сетевые магазины (''Пятерочка'', ''Магнит'', ''Чижик''), строительные гипермаркеты, две общеобразовательные школы, детские сады, музыкальная школа и библиотека. Транспортная доступность на высоком уровне: рядом остановка общественного и междугороднего транспорта. Для владельцев автомобилей в соседнем доме расположены пункты выдачи Wildberries и Ozon. Медицинская инфраструктура представлена диагностическим центром ''Медлаб'', а для любителей прогулок и отдыха на природе в пяти минутах ходьбы находится набережная реки Камы. Район отличается сбалансированностью городской среды - здесь есть все необходимое для комфортной жизни, работы и досуга, при этом сохраняется спокойная жилая атмосфера. Квартира подойдет как для семей с детьми, благодаря развитой социальной инфраструктуре, так и для тех, кто ценит удобство расположения и транспортную доступность. Состояние объекта и его местоположение делают это предложение одним из наиболее практичных вариантов в данном районе.