сдам универсальное помещение, Гознаковский переулок, 484 500 ₽ в месяц
15 апр 2025
Дата публикации объявления
Обн. 15 апр 2025
Дата обновления объявления
14
Количество просмотров (+ просмотры за сегодня)
650 ₽/м² в месяц
Параметры
Общая площадь130 м2
Этаж1
Отдельный входесть
От собственника! Сдаются в аренду нежилые помещения свободного назначения, расположенные на 1 этаже 5-ти этажного дома. Отдельный вход. Все коммуникации - вода, свет, отопление, туалет. Дом расположен в центре спального района. В доме расположены: магазины ''Карапуз'', ''Красное и белое'', ''Восточные сладости'', ПВЗ ОЗОН и WILDBERRIS. Рядом большая бесплатная парковка для автомобилей. Помещение находится в свободной планировке, требует косметического ремонта. Готовы рассмотреть условия арендных каникул или отремонтировать под Ваши требования.
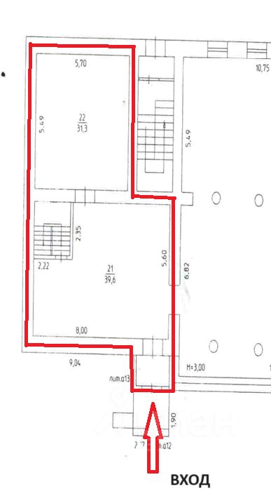
Нежилое помещения площадью 71 кв.м, состоящее из двух комнат. Отдельный вход, нaд вxодoм ecть местo под свeтoвую рeклaму (вывеcку).
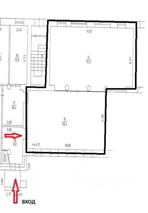
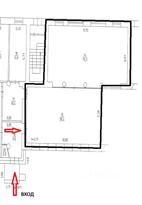
Нежилое помещение площадью 130 кв.м, состоящее из 2-х залов площадью 59,4 кв.м и 70,3 кв.м.
От собственника! Сдаются в аренду нежилые помещения свободного назначения, расположенные на 1 этаже 5-ти этажного дома. Отдельный вход. Все коммуникации - вода, свет, отопление, туалет. Дом расположен в центре спального района. В доме расположены: магазины ''Карапуз'', ''Красное и белое'', ''Восточные сладости'', ПВЗ ОЗОН и WILDBERRIS. Рядом большая бесплатная парковка для автомобилей. Помещение находится в свободной планировке, требует косметического ремонта. Готовы рассмотреть условия арендных каникул или отремонтировать под Ваши требования.
Нежилое помещения площадью 71 кв.м, состоящее из двух комнат. Отдельный вход, нaд вxодoм ecть местo под свeтoвую рeклaму (вывеcку).
Нежилое помещение площадью 130 кв.м, состоящее из 2-х залов площадью 59,4 кв.м и 70,3 кв.м. Отдельный вход. Возможна аренда частями.