В избранном
В избранное
Пожаловаться
Напечатать
Следить за ценой

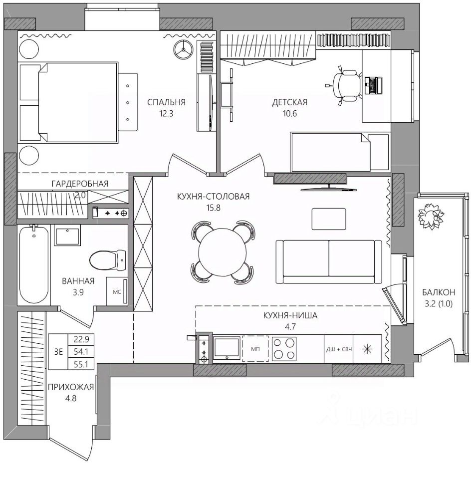
продам 3-к, Парковый проспект, 36в11 291 000 ₽

15 апр 2025
Обн. 11 мая
9
204 918 ₽/м²
  • Чистая продажа