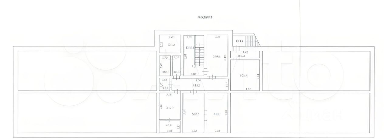
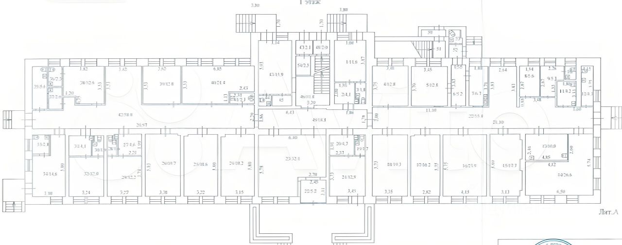
В продаже 2-х этажное здание гостиницы. Все коммуникации, разводка отопления, разводка воды новые, территория с видеонаблюдением по периметру, и внутри здания.
Здание оборудовано охранной, пожарной сигнализацией. Готовый арендный бизнес. Окупаемость 6 лет. Арендатор компенсирует: электроэнергию, тепло снабжение, водоснабжение, канализацию. Максимально надежное вложение денег!






























