сдам универсальное помещение, Героев Хасана, 68а/1459 135 ₽ в месяц
15 окт 2024
Дата публикации объявления
Обн. 21 мая
Дата обновления объявления
30
Количество просмотров (+ просмотры за сегодня)
450 ₽/м² в месяц
Параметры
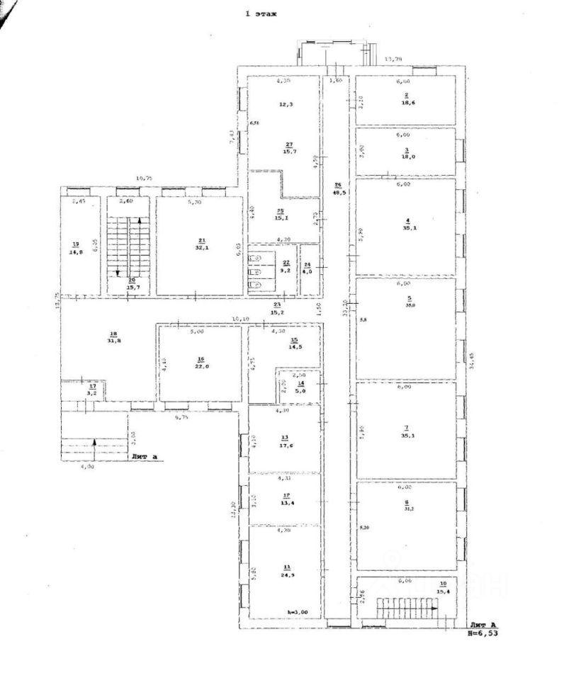
Общая площадь1020,3 м2
Этаж1
Отдельный входесть
АРЕНДА АДМИНИСТРАТИВНОГО ЗДАНИЯ В ПЕРМИ с собственной ПАРКОВКОЙ: Адрес: г. Пермь, Свердловский район, ул. Героев Хасана, д. 68а/1.
Удачное расположение: в 150м. от главной дороги, рядом расположен магазины, остановка общественного транспорта, отличный пешеходный и транспортный трафик. 2х-этажное кирпичное здание 1985 года. Назначение: Здание лабораторного корпуса. Площадь 1020,3кв.м. с земельным участком 700кв.м. Категория: Земли населенных пунктов.
Охраняемая территория с собственной парковкой на 20 машин, видео наблюдением по периметру всего здания. Круглосуточный доступ по необходимости. Пожарно - Охранная сигнализация. Отдельный вход с пропускной системой, 3 запасных выхода. Качественный офисный ремонт, кондиционирование.
АРЕНДА АДМИНИСТРАТИВНОГО ЗДАНИЯ В ПЕРМИ с собственной ПАРКОВКОЙ: Адрес: г. Пермь, Свердловский район, ул. Героев Хасана, д. 68а/1.
Удачное расположение: в 150м. от главной дороги, рядом расположен магазины, остановка общественного транспорта, отличный пешеходный и транспортный трафик. 2х-этажное кирпичное здание 1985 года. Назначение: Здание лабораторного корпуса. Площадь 1020,3кв.м. с земельным участком 700кв.м. Категория: Земли населенных пунктов.
Охраняемая территория с собственной парковкой на 20 машин, видео наблюдением по периметру всего здания. Круглосуточный доступ по необходимости. Пожарно - Охранная сигнализация. Отдельный вход с пропускной системой, 3 запасных выхода. Качественный офисный ремонт, кондиционирование.
Всего в здании 33 кабинета различной площади (9 кв.м.- 42,6 кв. м.), санузлы на каждом этаже, серверная, подсобные помещения, кладовая, кабинеты с водоснабжением.
Можем сдать отдельно 1 этаж - 510 кв.м. и 2 этаж -510,3 кв.м. Высота потолока - 3м. Мебель, что на фото видео, заберут, сдаваться будут пустые кабинеты.
Здание оборудовано всеми необходимыми центральными коммуникациями: Электроснабжение общей мощностью 46кВт. Отопление, водоснабжение, водоотведение.
Стоимость 5400 рублей/1кв.м в год. Отдельно оплачиваются коммунальные платежи и доп. расходы.
Идеально подойдет для: офиса крупной компании, научно-исследовательского /проектного института.