Дом, Тюляковская Показать на карте
Качка
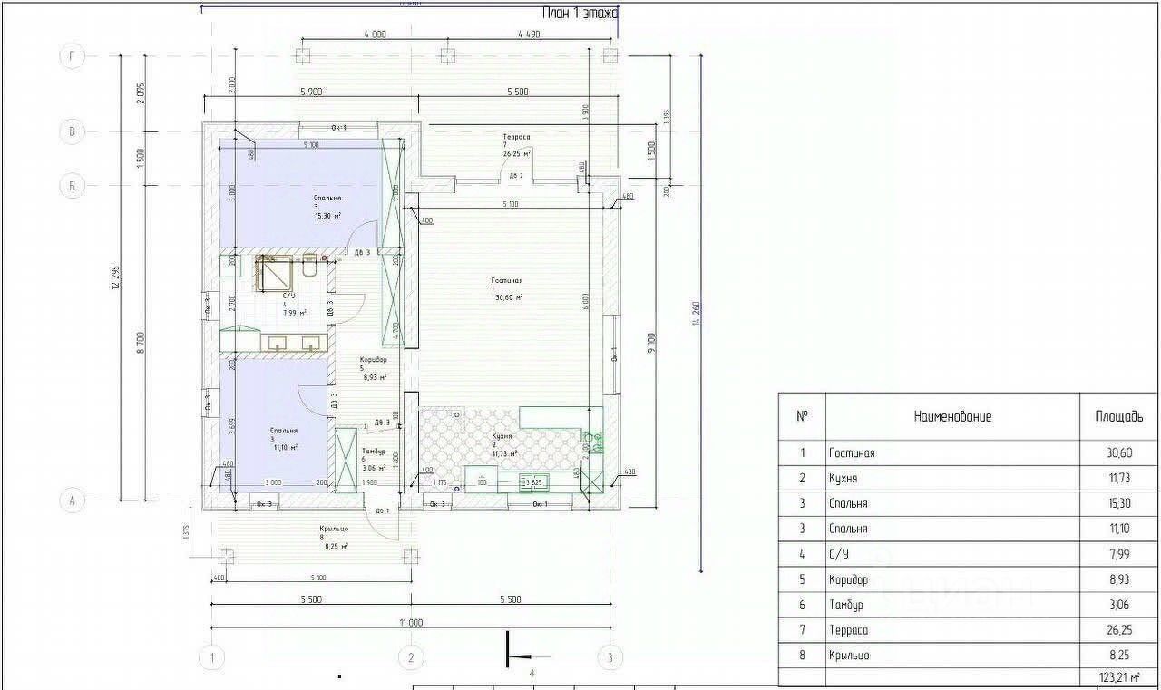
Арт. 136230529 Дом готовый 80 м² 3 спальни + кухня гостиная со вторым светом + чердак + участок ижс 13 сотокВ стоимость входит земельный участок, канализация, подключенное электричество.Предложение реальное, не маркетинговое!ФундаментСвайно-ленточный ширина 400 мм высота 700 мм + сваи d250 мм глубина 1750 мм шагом 2 м с полной армировкойСтеныГазоблок 300 мм с двойным армированием каждые 4 ряда (многие не делают)Армопояс всего периметра с внутренней опорной стеной.ОтоплениеКотел 12 кВт с теплыми поламиПолПолусухая стяжка, готова под ламинат, либо любое другое напольное покрытиеВодаСкважина внутри дома с наружним насосом 1 кВт, двойные фильтрa типа BBПодогрев водыВодонагреватель плоский 50 литров с электронным блоком управления.ЭлектрикаЗаземление 6 метров. Вводной C32. Автоматы Schneider Electric, в том числе диф автомат на ванную комнату. Подводка к дому эстетичная в грунте. В каждой комнате минимум 3 розеточных точек для максимально удобного расположения мебели. Уличный розеточный блок. Получен пульт. Без задолженности.КанализацияЖБ кольца d=2,2 м с днищем 6 мПодводка ко всем мокрым точкам, включая стиральную машину, аварийного сбрасывания котла и водонагревателя.Земельный участокПрямоугольный правильной формы 13,25 соток ИЖС.ВентиляцияЕстественная. Присутствует в каждой комнате. В ванной комнате принудительная. Вентиляция холодной части крыши реализована через кровельные аэраторы.Внутреннее состояние полностью готово к чистовой отделке. Окна и двери с отделкой. Все окна с открыванием и проветриванием, фасад полностью готов с освещением.Дорога с планировкой и отсыпкой. Зимой чистится муниципалитетом. Видеонаблюдение улиц. Освещение.Остановка автобуса в пешей 5 минутной доступности. Есть соседи. Красивый вид на лес. Отличное предложение для тех кто влюблен в природу и спокойствие. Весной нет затопления. Место с максимальным солнечным присутствием от рассвета до заката.5 минутная доступность на автомобиле до Продуктовых, строительных магазинов, пунктов выдач маркетплейсов, точек питания.Ожидаем окончания строительства аквапарка и спортивного комплекса в Усть-качке. Необычайно широкий спектр рекреационных ресурсов.Свободный проход на курорт для собственников жилых обьектов. 2 км до реки Кама и Качки.Успехов вам и до встреч на просмотре дома!
80 м2
1 этаж
- Показать контакты
- Добавить в избранное
80 м2
1 этаж
6 700 000
83 750 /м2
