Торговые площади
Космонавтов, 11 Показать на карте
Космонавтов, 11 Показать на карте
Губаха
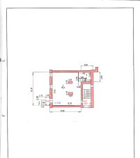
Арт. 133473822 Продается коммерческое помещение в центре города!Преимущества:* Отличное расположение: В центре города Губаха, хорошая проходимость.* Большое помещение: Площадь 4950 квадратных метров.* Удобная планировка: 2 больших зала, туалет.* Коммуникации: Вода холодная и горячая, отопление.* Универсальность: Подойдет для салонов, магазинов, готового бизнеса.* Рассмотрим наличные, ипотеку.Характеристики:* Площадь: 4950 кв.м.* Расположение: Центр города Губаха* Коммуникации: Вода холодная и горячая, отопление* Планировка: 2 больших зала, туалетСвяжитесь с нами для получения дополнительной информации и записи на просмотр!Не упустите возможность приобрести коммерческое помещение в центре города по выгодной цене!
4950 м2
- Показать контакты
- Добавить в избранное
4950 м2
4 000 000
808 /м2
