3-к, Нижнемуллинская, 13 Показать на карте
Култаево
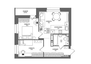
Предлагаем к приобретению уютную 3-х комнатную квартиру в самом центре Култаево!Квартира находится в хорошем состоянии: просторная, чистая, светлая, теплая.Все комнаты изолированные (17.6 м², 15.2 м² и 13.1 м²), окна которых выходят на разные стороны дома, что обеспечивает отличное естественное освещение и проветривание. Для вашего удобства предусмотрена вместительная гардеробная, раздельный санузел.В шаговой доступности находятся все необходимые объекты инфраструктуры: детские сады и школы для ваших детей, клуб, поликлиника, храм, разнообразные магазины и аптеки для повседневных нужд, остановки.Не упустите свой шанс обрести надежное и комфортное жилье в самом центре Култаево!
60 м2
1 / 3 этаж
Панель
- Показать контакты
- Добавить в избранное
60 м2
1 / 3 этаж
Панель
5 100 000
85 000 /м2
