3-к, Самолетная, 6 Показать на карте
Индустриальный район, Новоплоский
Пермь, Жилой комплекс «ЭЛЕРОН»
''Элерон'' — это дом, где каждый день начинается с ощущения полёта. Здесь свобода и лёгкость наполняют каждое пространство, создавая атмосферу, в которой идеи обретают крылья, а моменты — значимость. Дом словно парит над ритмом города, соединяя в себе динамику современности и спокойствие уединения. Концепция ''Элерона'' вдохновлена самим полётом — это жизнь на высоте, где всё построено для гармонии и движения вперёд.В доме всё продумано до мельчайших деталей, словно каждый метр — это часть точного маршрута. Стилобатная секция напоминает о крыльях самолёта, расправленных для нового взлёта. Семейные встречи в лаунж-зоне, работа в коворкинге и отдых во дворе здесь переплетаются в единый поток, где каждый шаг — это взвешенное решение, а каждая минута прожита осознанно.''Элерон'' — ваш личный аэродром, готовый к новым горизонтам
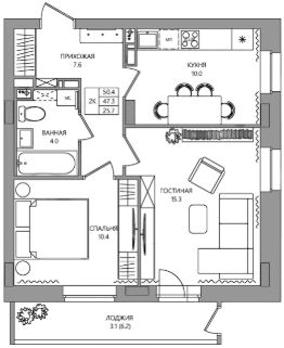
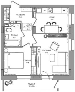
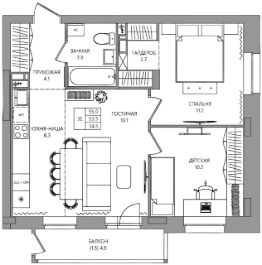
55 м2
5 / 9 этаж
Кирпич - монолит
- Показать контакты
- Добавить в избранное
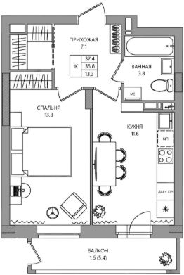
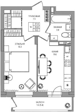
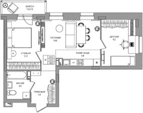
55 м2
5 / 9 этаж
Кирпич - монолит
10 127 000
184 127 /м2
Новостройка,
III-2026
III-2026
