logo
N1.RU — новая улучшенная версия Е1.Недвижимость
Чтобы вернуться на старый сайт Е1.Недвижимость, перейдите по ссылке в нижней части сайта N1.RU
  • Продажа
  • Аренда
  • Новостройки
  • Журнал
  • Компании
  • Оценка
  • Шаблоны документов
  • Налоговый вычет
  • Еще
  • Личный кабинет
    • Вход
    • Регистрация
    • Пермь
  • Добавить объявление
Тип недвижимости
Пермь
Начните вводить или выберите объект в выпадающем списке
  • Район и микрорайон
Количество комнат
Цена
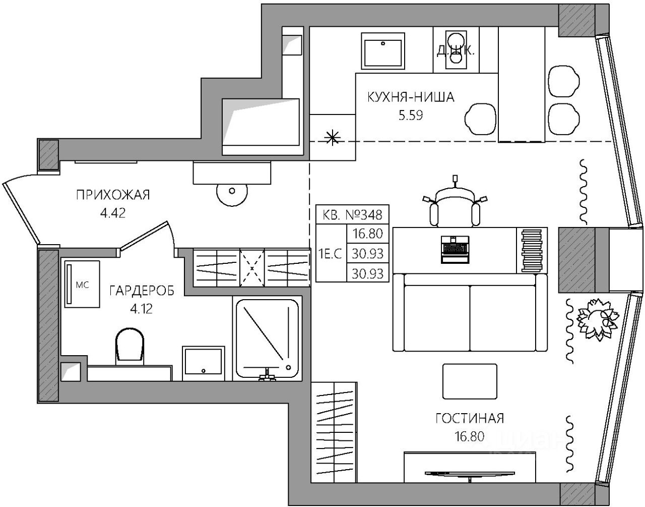
  1. Недвижимость в Перми
  2. Продажа
  3. Квартиры
  4. 1 объявление

Продажа квартир в Перми

За все время
Сортировка по умолчанию
СпискомСписком
ТаблицейТаблицей
На картеНа карте
Открыть поиск по карте

По вашему запросу объявлений не найдено

1/7
1-к, Пролетарская, 101 Показать на карте
Мотовилихинский район, Висим
Пермь, Жилой комплекс «Дом на семи холмах»
Продается квартира-студия в современном монолитно-кирпичном доме от инвестора. Объект характеризуется высокой надежностью конструкций и качественной инженерией. Низкая этажность — всего восемь уровней — гарантирует камерность, отсутствие суеты и быстроту перемещения по подъезду. Квартира передается с предчистовой отделкой: выполнены стяжка пола, штукатурка стен и разводка всех необходимых коммуникаций. Это оптимальный баланс, позволяющий сэкономить на черновых работах и сразу приступить к финишной отделке, полностью реализовав собственные представления о дизайне интерьера. Планировка свободная, с большим окном.Предусмотрели водный теплый пол в самых важных местах: грязная зона при входе в квартиру и санузел. Собственная газовая котельная позволяет вам самостоятельно управлять подачей отопления и температурой горячей воды. На улице стало тепло? Управляющая компания снизит температуру нагрева, а вы сэкономите. Жилой комплекс расположен в сложившемся районе с полноценной социальной и бытовой инфраструктурой: в шаговой доступности находятся супермаркеты, поликлиника, детские сады, школы, парк ''Райский сад'', Мотовилихинский пруд. Развитая транспортная сеть обеспечивает удобный выезд в любую часть города. Объединяя преимущества современной новостройки с проверенной технологией монолитно-кирпичного строительства, объект представляет собой выгодное вложение и готовое решение для комфортного проживания. Код пользователя: 194701Номер в базе: 11938912
27 м2
2 / 8 этаж
Кирпич - монолит
  • Показать контакты
  • Добавить в избранное
27 м2
2 / 8 этаж
Кирпич - монолит
4 100 000 
150 183 /м2
Новостройка,
IV-2027

    Похожие объявления

    Мы ослабили критерии поиска, чтобы показать вам подходящие объявления

    1/14
    2-к, Дзержинского, 31б Показать на карте
    Дзержинский район
    Пермь, Камаполис
    В новом жилом комплексе комфорт+ класса ''Камаполис'', расположенном на берегу реки Камы, продается 2-комнатная квартира площадью 64.00 кв. м. с предчистовой отделкой. Квартира находится в 3 доме. Девелопер проекта - ''Железно''.Транспортная доступность• Трамвайная остановка всего в 3 минутах пешком,• 15 минут ходьбы до вокзала Пермь-2,• 10 минут на машине до центра города.Продуманный архитектурный проектКамаполис - это жизнь в соразмерной среде, спроектированной известными архитекторами. Жилые этажи ''Камаполиса'' строят из кирпича и по монолитной технологии, стены обладают высокой устойчивостью к нагрузкам, огнестойкостью, хорошей шумоизоляцией. Такие дома отлично сохраняют первоначальный внешний вид и радуют жителей долгие годы.Концептуальные лоббиКонцепция проекта продолжается интерьером лобби. Здесь преобладают естественные оттенки и текстуры, а мебель выполнена из экологичных материалов. Для удобства жителей созданы собственные колясочные и велосипедные, а для заботы о домашних любимцах предусмотрена лапомойка.Благоустройство Новый центр притяжения - всесезонный сквер, выполненный в тематике и стилистике пермского периода. Прогулочные зоны, игровые и спортивные площадки, релакс-зоны и места для творчества - все эти мультифункциональные пространства формируют сценарии для любого досуга. Любители особой приватности оценят соседские террасы - это специальные пространства для жителей, расположенные прямо на стилобате паркинга. Любуйтесь на реку, принимайте участие в совместных мероприятиях с соседями, с удовольствием работайте на свежем воздухе и приятно проводите время с близкими. Дополнительные преимущества• Собственный детский сад на 320 мест,• Стрит-ритейл с магазинами и кафе прямо на территории комплекса,• Управление домом через собственное мобильное приложение ''Мажордом'',• 3 разных вида отделки на выбор покупателей.
    64 м2
    6 / 8 этаж
    Монолит
    • Показать контакты
    • Добавить в избранное
    64 м2
    6 / 8 этаж
    Монолит
    12 114 540 
    189 290 /м2
    Новостройка,
    III-2026
    1/14
    2-к, Дзержинского, 31б Показать на карте
    Дзержинский район
    Пермь, Камаполис
    В новом жилом комплексе комфорт+ класса ''Камаполис'', расположенном на берегу реки Камы, продается 2-комнатная квартира площадью 58.00 кв. м. с предчистовой отделкой. Квартира находится в 3 доме. Девелопер проекта - ''Железно''.Транспортная доступность• Трамвайная остановка всего в 3 минутах пешком,• 15 минут ходьбы до вокзала Пермь-2,• 10 минут на машине до центра города.Продуманный архитектурный проектКамаполис - это жизнь в соразмерной среде, спроектированной известными архитекторами. Жилые этажи ''Камаполиса'' строят из кирпича и по монолитной технологии, стены обладают высокой устойчивостью к нагрузкам, огнестойкостью, хорошей шумоизоляцией. Такие дома отлично сохраняют первоначальный внешний вид и радуют жителей долгие годы.Концептуальные лоббиКонцепция проекта продолжается интерьером лобби. Здесь преобладают естественные оттенки и текстуры, а мебель выполнена из экологичных материалов. Для удобства жителей созданы собственные колясочные и велосипедные, а для заботы о домашних любимцах предусмотрена лапомойка.Благоустройство Новый центр притяжения - всесезонный сквер, выполненный в тематике и стилистике пермского периода. Прогулочные зоны, игровые и спортивные площадки, релакс-зоны и места для творчества - все эти мультифункциональные пространства формируют сценарии для любого досуга. Любители особой приватности оценят соседские террасы - это специальные пространства для жителей, расположенные прямо на стилобате паркинга. Любуйтесь на реку, принимайте участие в совместных мероприятиях с соседями, с удовольствием работайте на свежем воздухе и приятно проводите время с близкими. Дополнительные преимущества• Собственный детский сад на 320 мест,• Стрит-ритейл с магазинами и кафе прямо на территории комплекса,• Управление домом через собственное мобильное приложение ''Мажордом'',• 3 разных вида отделки на выбор покупателей.
    58 м2
    8 / 8 этаж
    Монолит
    • Показать контакты
    • Добавить в избранное
    58 м2
    8 / 8 этаж
    Монолит
    13 044 870 
    224 912 /м2
    Новостройка,
    III-2026
    1/37
    3-к, Фролы Показать на карте
    Фролы
    Продаётся 3-комнатная квартира в строящемся доме (Степная, 3), срок сдачи: III-кв. 2028, общей площадью 48.2 кв.м., на 1 этаже. Новый жилой комплекс ''Родные росы'' от Специализированного застройщика ''Финпроект'' расположен в с. Фролы по ул. Академическая.
    48 м2
    1 / 14 этаж
    Панель
    • Показать контакты
    • Добавить в избранное
    48 м2
    1 / 14 этаж
    Панель
    6 998 640 
    145 200 /м2
    Новостройка,
    III-2028
    1/37
    2-к, Фролы Показать на карте
    Фролы
    Продаётся 2-комнатная квартира в строящемся доме (Степная, 3), срок сдачи: III-кв. 2028, общей площадью 58.7 кв.м., на 2 этаже. Новый жилой комплекс ''Родные росы'' от Специализированного застройщика ''Финпроект'' расположен в с. Фролы по ул. Академическая.
    58 м2
    2 / 14 этаж
    Панель
    • Показать контакты
    • Добавить в избранное
    58 м2
    2 / 14 этаж
    Панель
    7 554 690 
    128 700 /м2
    Новостройка,
    III-2028
    1/30
    1-к квартира Показать на карте
    Свердловский район, Крохалева
    Пермь
    1-комн. студия от застройщика с предчистовой отделкой в ЖК ''Квартал ''Юность'''' на 3 этаже. Общая площадь: 24.26 кв.м. Высота потолков 2.7 м. Дом монолитный, многоподъездный, переменной этажности, от 9 до 16 этажей. Квартира находится в 3-й секции высотой 11 этажей в корпусе 2. На этаже 8 квартир. В подъезде 1 пассажирский и 1 грузовой лифт. Окончание строительства - 4 квартал 2028 года. Оформление сделки по договору долевого участия. Студия в квартале ''Юность''. Особенности планировки: вид во двор. квартиры в нашей базе: ЮСТ01-Ж4.3.8. Квартал ''Юность'' расположен между улицами Лодыгина и Яблочкова. Обе названы в честь русских электротехников и изобретателей, которые занимались созданием электрических ламп. Это соседство вдохновило нас на метафору, которая легла в основу концепции проекта.В физике есть термин ''суперпозиция'' — наложение нескольких воздействий, приводящее к суммарному эффекту. Именно он лучше всего отражает идею проекта Брусники. ''Юность'' — это совокупность преимуществ в одном пространстве. Узнаваемая архитектура, уютные квартиры, безопасный двор, качественное озеленение — все эти элементы незаменимы и складываются в уникальный качественный продукт. Микрорайон Крохалева сочетает в себе черты делового центра и спокойного семейного квартала. Отсюда можно быстро добраться до всех деловых, транспортных и прогулочных зон Перми. Дорога до центра займёт 10-15 минут на автомобиле.Рядом, в пешей доступности уже есть необходимая социальная и коммерческая инфраструктура. ''Юность'' состоит из двух объёмов: вытянутого корпуса с разноуровневыми секциями и 16-этажной башни. Высота секций от 9 до 11 этажей делает дом комфортным для восприятия.Каркас дома выполнен из монолитного железобетона — это надежная и долговечная конструкция, которая прослужит не менее ста лет. Отделка фасада выполнена в светлой, природной гамме: белый, серо-коричневый и теплый бежевый цвета и выразительные вставки придают дому современный облик. Балконы и террасы на верхних этажах выступают связующими звеньями, они создают плавные переходы между секциями и создают дополнительную визуальную динамику. Уникальная форма участка позволила создать единую систему благоустройства с функциональными зонами: - Внешние пространства: Встречающая площадь с арт-объектом и кафе, рекреационная зона для отдыха и игр, прогулочный бульвар с торговыми павильонами все доступно горожанам.- Закрытый двор: Разделен на зоны для тихого отдыха и активных игр. Детские площадки для разных возрастов, включая экспериментальную для малышей. Родители могут наблюдать за детьми из-под навеса.- Озеленение: До 70% двора займут деревья, кустарники и цветы, высаженные с учетом календаря цветения для круглогодичной эстетики. Проект учитывает биоразнообразие, создавая среду для местной фауны.
    24 м2
    3 / 11 этаж
    Монолит
    • Показать контакты
    • Добавить в избранное
    24 м2
    3 / 11 этаж
    Монолит
    3 970 000 
    163 644 /м2
    Новостройка,
    IV-2028
    Показать все похожие объявления
    Распечатать
    Продажа квартир в Перми
    • по районам
    • Дзержинский район
    • Индустриальный район
    • Кировский район
    • Ленинский район
    • Мотовилихинский район
    • Орджоникидзевский район
    • Свердловский район

    Вместе с этим также ищут:

    Продажа квартир в Перми Продажа однокомнатных квартир в Перми Продажа комнат в Перми Продажа гаражей в Перми Продажа вторички - квартиры в Перми Квартиры в новостройках в Перми

    🏠 Как купить квартиру в Перми на N1?

    • ✔ В поисках объявления о продаже или покупке квартир в Перми?
    • ✔ На N1 размещена 1 квартира
    • ✔ Чтобы купить или продать недвижимость, воспользуйтесь формой поиска, фильтрами или быстрыми ссылками.